Россия, Приморский край, Артем, ул. 2-я Рабочая, 105/4
800 000 000 Р 9 849 100 $ или 8 525 500

Информация об помещении

1
Этаж

Состояние и оснащение

Количество этажей
1
Развернуть
Агент
+7 (914) 160-67-08
Начать чат с агентом

Производственное помещение в Приморский край, Артем ул. 2-я Рабочая, ...

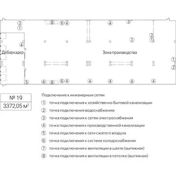
Продается производственно-складская база в г. Артем.База расположена в развитом районе города, близость к федеральной трассе Владивосток - Хабаровск, что делает ее привлекательной для бизнеса.Удобный подъездной путь и большая парковка, что обеспечивает удобство для транспорта и организации доставки товаров.На территории базы расположены складские, административные помещения, все необходимые коммуникации, в том числе электричество, водоснабжение и канализация, что позволит без проблем начать вести бизнес.Характеристики:Земельный участок в собственности, общая площадь 9,7 Га, назначение - производственное (подходит под склады, контейнерный терминал, переработку грузов), территория отсыпана скальником Статус земельного участка: Резиденты свободного порта Владивосток (СПВ, аналог ТОР).Электричество - три собственные подстанции - поставщик ДРСК, Артемовские сети, основная мощность 540 кВт + 200 кВт резерв.Вода - центральнаяКанализация - центральнаяЖелезнодорожный тупик, действующий - 620м, в собственности, примыкает к ст. Угловая, Приморский край, назначение - переработка вагонов (готовятся документы, разрешение на работу с контейнерами).Склады - 359,5 м.кв.Склад - 470,7 м.кв.Здание-склад - 145,5 м.кв.Здание-склад - 409 м.кв.Здание-склад - 492,9 м.кв.Здание-склад - 860,2 м.кв.Проходная - 19,7 м.кв.Вся территория огорожена забором. Установлены камеры видеонаблюдения. База находится под охраной Возможные варианты использования базы:- контейнерный терминал- угольный терминал- логистический центрЭто отличное предложение для тех, кто ищет надежное и удобное место для своего бизнеса.Не упустите возможность приобрести выгодное вложение в свой бизнес. Звоните и записывайтесь на просмотр уже сегодня

Читать полностью
    Позвонить Написать
    800 000 000 Р9 849 100 $ или 8 525 500
    Агент
    +7 (914) 160-67-08
    Начать чат с агентом
    Похожие предложения
    Производственное помещение в Московская область, Жуковский ул. ... - Фото 1
    Производственное помещение в Московская область, Жуковский ул. ... - Фото 2
    Уникальный номер помещения. Транспортная доступность: Егорьевское (Р-10) ш., Новорязанское (М-5) ш., Рязанское ш.; Удаленность от МКАД: 15 км; .Строительство современного производственно-складского комплекса класса А формата light industrial Удобное...
    • 1/3 эт.
    791 023 320 Р
    Агент
    +7 (980) Показать номер
    Посмотреть контакты
    Производственное помещение в Сахалинская область, Южно-Сахалинск ... - Фото 1
    Производственное помещение в Сахалинская область, Южно-Сахалинск ... - Фото 2
    Арт.Предлагаем для продажи коммерческую недвижимость и земельный участок 7926 m2, в собственности. Земельный участок имеет общую площадь 7926м2, на которой находится основное трехэтажное здание и одноэтажное административное здание с въездом (66,3м2),...
    • 3/3 эт.
    800 000 000 Р
    Агент
    +7 (914) Показать номер
    Посмотреть контакты
    Производственное помещение в Алтай, Усть-Коксинский район, с. ... - Фото 1
    Производственное помещение в Алтай, Усть-Коксинский район, с. ... - Фото 2
    Арт.Продаю мараловодческий комплекс. Земли 2700 ГА в собственности, поголовье 1500 маралов. Хозяйство расположено в одном из красивейших регионов Российской Федерации Республике Алтай. Цель выращивания и содержания марала - добыча панта. Пант это молодые...
    • 1/1 эт.
    793 000 000 Р
    Агент
    +7 (983) Показать номер
    Посмотреть контакты
    Продажа производственного помещения, Долматово, Домодедово г. о. - Фото 1
    Продажа производственного помещения, Долматово, Домодедово г. о. - Фото 2
    Продажа производственного помещения, Долматово, Домодедово г. о. - Фото 3
    Продажа производственного помещения, Долматово, Домодедово г. о. - Фото 4
    общая площадь 7000м², полезная площадь 7000м²

    Арт. Продается отдельно стоящее здание общей площадью 7000 кв.м. Формат блоков Лайт Индастриал. Общая площадь помещений блока-7000м2. Площадь склада на отметке +0.м2. Площадь мезонина на отметке +4.800 -800м2 с нагрузкой 250кг. на м2. Высота потолков...
    • 7 000 м²
    • 2-й эт.
    805 000 000 Р
    PRO
    +7 (495) Показать номер
    Агентство
    ИП Захарова
    Посмотреть контакты
    Производственное помещение в Московская область, Электросталь Северная ... - Фото 1
    Производственное помещение в Московская область, Электросталь Северная ... - Фото 2
    Арт.Продается завод специализирующийся на металлообработке и сопутствующих направлениях. Предприятие предлагает уникальные возможности для инвесторов, заинтересованных в развитии промышленного производства. Основные характеристики завода: - Отрасль:...
    • 1/5 эт.
    800 000 000 Р
    Агент
    +7 (916) Показать номер
    Посмотреть контакты

    Не нашли подходящего объявления?

    Оставьте заявку, и наши риэлторы подберут производственное помещение в районе Артема

    (0)