4 350 000 Р 53 530 $ или 46 090

Информация о квартире

45 м2
Площадь
30 м2
Жилая
7 м2
Кухня
2
Комнаты
5
Этаж
5
Этажность

Дополнительная информация

Тип дома
панельный
Развернуть
Агент
+7 (914) 794-07-59
Начать чат с агентом

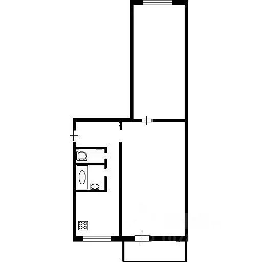
2-к кв. Приморский край, Фокино ул. Усатого, 19/19А (45.1 м)

Арт.Ваша новая квартира ждет вас в Фокино Агентство недвижимости Самолет Плюс с радостью представляет вашему вниманию отличный вариант для жизни или инвестиций уютную двухкомнатную квартиру в городе Фокино, по адресу улица Усатого, дом 19а.Расположенная на комфортном пятом этаже пятиэтажного дома, эта квартира общей площадью 45. 1 квадратных метра предлагает вам простор и функциональность. Это идеальное место для тех, кто мечтает создать интерьер своей мечты, ведь квартира предлагается под ваш собственный ремонт.Уже сейчас вы можете оценить преимущества: установлены счетчики на воду, а также произведена замена электрики, сантехники и радиаторов отопления, что гарантирует вам надежность и комфорт. Современные окна ПВХ обеспечат тишину и тепло в вашем доме, а просторная лоджия станет любимым местом для утреннего кофе или вечернего отдыха.Планировка квартиры заслуживает отдельного внимания: все комнаты изолированы, что создает приватность для каждого члена семьи. Просторная кухня позволит вам с удовольствием готовить любимые блюда, а вместительная прихожая поможет поддерживать порядок. Раздельный санузел добавляет удобства в повседневную жизнь.Дом находится в ухоженном состоянии: чистый и аккуратный подъезд создает приятное первое впечатление. Спокойные соседи гарантируют вам комфортное проживание. Для автовладельцев предусмотрено место для парковки.Инфраструктура района прекрасно развита: в шаговой доступности находятся детская площадка, детский сад и школа, а также все необходимые магазины.Стоимость услуг агентства составляет.Не упустите свой шанс стать обладателем этой замечательной квартиры Звоните нам прямо сейчас, чтобы узнать подробности и договориться о просмотре.*ТОЛЬКО ДЛЯ КЛИЕНТОВ КОМПАНИИ САМОЛЕТ ПЛЮСВозможно снижение ставки в два раза Уникальное предложение ИПОТЕКА - от наших банков-партнеров: Совкомбанк, ВТБ, СБЕРБАНК.Самолет Плюс - это:Поиск+подбор+покупка+аренда+продажа+недвижимость+ готовые дизайн-проекты+индивидуальный ремонт+ телеком+меблировка+оценка+страховка+отличные условия страхованияПОЧЕМУ ПРОДАВЦЫ ВЫБИРАЮТ НАС:+Юристы эксперты+Агенты, прошедшие обучение в университете компании+Дополнительные сервисы+Безопасные сделкиЧТО ПОЛУЧАЮТ НАШИ КЛИЕНТЫ:+Выгодную для себя сделку+Быструю сделку без нервов и переживаний+Безопасные денежные расчёты+Страхование сделки+Трансфер для иногородних клиентов+Отчёт агента о проделанной работе и контроль за исполнением

Читать полностью

    Для того, чтобы купить двухкомнатную квартиру по адресу: Фокино, ул. Усатого, 19/19А, позвоните по телефону +7 (914) 794-07-59. Торопитесь! Объявление №30090812689 о продаже двухкомнатной квартиры опубликовано 17 октября 2025.

    Позвонить Написать
    4 350 000 Р53 530 $ или 46 090
    Агент
    +7 (914) 794-07-59
    Начать чат с агентом
    Похожие предложения
    3-к кв. Приморский край, Фокино ул. Усатого, 13 (51.9 м) - Фото 1
    3-к кв. Приморский край, Фокино ул. Усатого, 13 (51.9 м) - Фото 2
    3-комнатная квартира, общая площадь 51м², жилая 40м², кухня 6м²

    Арт.Агентство недвижимости Самолет Плюс предлагает к продаже светлую 3-к. квартиру, расположенную на комфортном третьем этаже пятиэтажного дома по ул. Усатого 13 Общая площадь 51,9 кв. м. Окна выходят на солнечную сторону. Косметический ремонт, квартира...
    • 51 м²
    • 3-ком
    • 3/5 эт.
    • панельный
    4 350 000 Р
    Агент
    +7 (914) Показать номер
    Посмотреть контакты
    1-комнатная квартира, общая площадь 53м²

    Лот 1 - Помещение, общая площадь 53 кв.м., расположенное по адресу: 692621, Приморский край, р-н Чугуевский, с Чугуевка, ул Комарова, д. 17, кв. 39, кадастровый номер 25:23:150103:1836.Точную информацию по НДС смотрите на сайте ЭТП
    • 53 м²
    • 1-ком
    • 3/3 эт.
    4 500 000 Р
    Агент
    +7 (984) Показать номер
    Посмотреть контакты
    1-комнатная квартира, общая площадь 53м²

    Лот 1 - Помещение, общая площадь 53 кв.м., расположенное по адресу: 692621, Приморский край, р-н Чугуевский, с Чугуевка, ул Комарова, д. 17, кв. 39, кадастровый номер 25:23:150103:1836.Точную информацию по НДС смотрите на сайте ЭТП
    • 53 м²
    • 1-ком
    • 3/3 эт.
    4 500 000 Р
    Агент
    +7 (984) Показать номер
    Посмотреть контакты
    4-комнатная квартира: Партизанск, Центральная улица, 15 (64 м) - Фото 1
    4-комнатная квартира: Партизанск, Центральная улица, 15 (64 м) - Фото 2
    4-комнатная квартира, общая площадь 64м², жилая 63м²

    Продаётся просторная четырехкомнатная квартира площадью 63.8 квадратных метра на втором этаже шестиэтажного кирпичного дома, расположенного по адресу: город Партизанск, Центральная улица, 15. Дом построен в 1974 году и окружён приятной атмосферой спокойствия...
    • 64 м²
    • 4-ком
    • 2/6 эт.
    4 400 000 Р
    Агент
    +7 (914) Показать номер
    Посмотреть контакты
    Квартира, 4 комнаты, 64 м - Фото 1
    Квартира, 4 комнаты, 64 м - Фото 2
    4-комнатная квартира, общая площадь 64м²

    Продаётся просторная четырехкомнатная квартира площадью 63.8 квадратных метра на втором этаже шестиэтажного кирпичного дома, расположенного по адресу: город Партизанск, Центральная улица, 15. Дом построен в 1974 году и окружён приятной атмосферой спокойствия...
    • 64 м²
    • 4-ком
    • 2/6 эт.
    • кирпичный
    4 400 000 Р
    Агент
    +7 (914) Показать номер
    Посмотреть контакты

    Не нашли подходящего объявления?

    Оставьте заявку, и наши риэлторы подберут квартиру в районе Фокино

    (0)