Россия, Приморский край, Фокино, ул. Карла Маркса, 11
3 750 000 Р 47 480 $ или 40 750

Информация о квартире

58 м2
Площадь
40 м2
Жилая
7 м2
Кухня
2
Комнаты
5
Этаж
5
Этажность

Дополнительная информация

Тип дома
панельный
Развернуть
Агент
+7 (914) 794-07-59
Начать чат с агентом

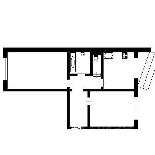
2-к кв. Приморский край, Фокино ул. Карла Маркса, 11 (58.4 м)

Арт.Агентство недвижимости Самолет Плюс предлагает к продаже просторную 2-комнатную квартиру, расположенную на 5-ом этаже 5-этажного дома по улице Карла Маркса д.11 в г.Фокино. Общая площадь - 58.4 кв.м. Выполнен косметический ремонт в приятных актуальных тонах. Установлены счетчики на воду. Окна - ПВХ. Есть просторная лоджия. Шикарная планировка: все комнаты изолированы, просторная кухня, вместительная прихожая, раздельный санузел. Чистый, аккуратный подъезд. Спокойные соседи. Установлен домофон. Есть место для парковки. Рядом детская площадка, детский сад, в шаговой доступности - магазины. Мебель и техника остаётся по договоренности. Комиссия агентства.

Читать полностью

    Для того, чтобы купить двухкомнатную квартиру по адресу: Фокино, ул. Карла Маркса, 11, позвоните по телефону +7 (914) 794-07-59. Торопитесь! Объявление №30090812696 о продаже двухкомнатной квартиры опубликовано 05 октября 2025.

    Позвонить Написать
    3 750 000 Р47 480 $ или 40 750
    Агент
    +7 (914) 794-07-59
    Начать чат с агентом
    Похожие предложения
    2-к кв. Приморский край, Фокино ул. Усатого, 10 (43.4 м) - Фото 1
    2-к кв. Приморский край, Фокино ул. Усатого, 10 (43.4 м) - Фото 2
    2-комнатная квартира, общая площадь 43м², жилая 30м², кухня 6м²

    Арт.Агентство недвижимости Самолет Плюс предлагает к продаже 2-к. квартиру, расположенную на пятом этаже пятиэтажного дома по ул. Усатого, д. 10. Светлая, солнечная сторона, квартира не угловая, расположена в середине дома. Дом находится в центре города,...
    • 43 м²
    • 2-ком
    • 5/5 эт.
    • панельный
    3 900 000 Р
    Агент
    +7 (914) Показать номер
    Посмотреть контакты
    2-к кв. Приморский край, Фокино ул. Мищенко, 8 (43.8 м) - Фото 1
    2-к кв. Приморский край, Фокино ул. Мищенко, 8 (43.8 м) - Фото 2
    2-комнатная квартира, общая площадь 43м², кухня 5м²

    Компания Этажи-Владивосток предлагает к продаже светлую, теплую 2-комнатную квартиру с балконом в кирпичном доме на среднем этаже по адресу ул. Мищенко д. 8 в г. Фокино, Приморский крайПреимущества квартиры: - все комнаты раздельные (спальня и зал)-...
    • 43 м²
    • 2-ком
    • 3/5 эт.
    3 700 000 Р
    Агент
    +7 (914) Показать номер
    Посмотреть контакты
    2-к кв. Приморский край, Фокино Ключевая ул., 2 (40.4 м) - Фото 1
    2-к кв. Приморский край, Фокино Ключевая ул., 2 (40.4 м) - Фото 2
    2-комнатная квартира, общая площадь 40м², жилая 30м², кухня 5м²

    Арт.Агентство недвижимости Самолет Плюс предлагает к продаже 2-комнатную квартиру в г. Фокино, расположенную на пятом этаже пятиэтажного блочного дома по ул. Ключевая, д. 2 Общая площадь 40,4 м2. Очень светлая, теплая квартира Планировка квартиры,...
    • 40 м²
    • 2-ком
    • 5/5 эт.
    • блочный
    3 850 000 Р
    Агент
    +7 (914) Показать номер
    Посмотреть контакты
    2-к кв. Приморский край, Лесозаводск ул. 9 Января, 61 (40.8 м) - Фото 1
    2-к кв. Приморский край, Лесозаводск ул. 9 Января, 61 (40.8 м) - Фото 2
    2-комнатная квартира, общая площадь 40м², жилая 27м², кухня 5м²

    Предлагается к продаже 2-комнатная квартира в кирпичном доме по адресу ул. 9 Января, д. 61 ОПИСАНИЕ: Общая площадь 40,8 кв.м Жилая площадь 27,4 кв.м Площадь кухни 5,4 кв.м Квартира находится на пятом этаже. Теплая и сухая. Готова к проживанию....
    • 40 м²
    • 2-ком
    • 5/5 эт.
    • кирпичный
    3 800 000 Р
    Агент
    +7 (914) Показать номер
    Посмотреть контакты
    1-комнатная квартира, общая площадь 50м²

    Квартира, назначение: жилое, общая площадь 50.2 кв.м, этаж 2, адрес (местоположение) объекта: Приморский край, г. Артем, ул. Случанского, д. 32, кв.10, кадастровый номер: 25:27:030105:3786.Имущество находится в совместной собственности с супругой должника...
    • 50 м²
    • 1-ком
    • 1/1 эт.
    3 870 000 Р
    Агент
    +7 (917) Показать номер
    Посмотреть контакты

    Не нашли подходящего объявления?

    Оставьте заявку, и наши риэлторы подберут квартиру в районе Фокино

    (0)