5 830 896 Р 73 050 $ или 62 740

Информация о квартире

33 м2
Площадь
15 м2
Жилая
5 м2
Кухня
1
Комната
9
Этаж
9
Этажность

Дополнительная информация

Тип дома
панельный
Развернуть
Агент
+7 (984) 729-45-57
Начать чат с агентом

1-к кв. Приморский край, Надеждинский район, пос. Тавричанка ул. Лазо, ...

ЖК Лоза проект стандарт-класса в Приморском крае. Расположен в 40-45 минутах от Владивостока, в живописной местности. Рядом находятся река Тавричанка и озеро, а всего в 15-20 минутах прогулки Амурский залив и пляж. Жилой комплекс с душой, в котором важные роли отведены общечеловеческим ценностям: связи с природой, домашнему уюту, любви, семейному единению, развитию, эстетике и внутреннему миру. Здесь создаются условия для свободной гармоничной жизни и воспитания детей. Двор жилого комплекса зеленый и уютный. Здесь можно прогуляться по дорожкам или позаниматься спортом на площадке с тренажерами, а детей ждет увлекательная игровая площадка. Также предусмотрена просторная зона для парковки. Предлагаются 1-комнатные и 2-комнатные планировки. Квартиры компактные (34,7-53 м), что делает их очень доступными для покупки. Архитектура изящная и сдержанная, фасады выполнены в оливковом цвете. Обращают на себя внимание плавные выступы балконов с витражным остеклением. В проекте 5 идентичных домов по 9 этажей, состоящих из 2 очередей. Планируем построить торговый центр непосредственно рядом с жилым комплексом. ЖК Лоза фактически станет новой точкой притяжения в поселке. Жилой комплекс находится всего в 40 минутах от Владивостока (рядом остановка), но при этом цены здесь в среднем на 1-2 миллиона ниже цен на сопоставимую недвижимость в городе. ЖК Лоза отличный вариант для жизни на природе с возможностью работать во Владивостоке За подробной консультацией обращайтесь в отдел продаж.

Читать полностью
    Позвонить Написать
    5 830 896 Р73 050 $ или 62 740
    Агент
    +7 (984) 729-45-57
    Начать чат с агентом
    Похожие предложения
    2-комнатная квартира, общая площадь 53м², жилая 29м², кухня 8м²

    ЖК Лоза проект стандарт-класса в Приморском крае. Расположен в 40-45 минутах от Владивостока, в живописной местности. Рядом находятся река Тавричанка и озеро, а всего в 15-20 минутах прогулки Амурский залив и пляж. Жилой комплекс с душой, в котором...
    • 53 м²
    • 2-ком
    • 1/9 эт.
    • панельный
    5 802 209 Р
    Агент
    +7 (984) Показать номер
    Посмотреть контакты
    2-к кв. Приморский край, Надеждинский район, пос. Тавричанка  (53.7 м) - Фото 1
    2-к кв. Приморский край, Надеждинский район, пос. Тавричанка  (53.7 м) - Фото 2
    2-комнатная квартира, общая площадь 53м², жилая 29м², кухня 8м²

    Квартира 56--------------------Продажа квартира в новостройке, Приморский край, Надеждинский район, посёлок Тавричанка, улица Лазо--------------------
    • 53 м²
    • 2-ком
    • 1/9 эт.
    • панельный
    5 802 209 Р
    Агент
    +7 (984) Показать номер
    Посмотреть контакты
    2-к кв. Приморский край, Надеждинский район, пос. Тавричанка  (53.2 м) - Фото 1
    2-к кв. Приморский край, Надеждинский район, пос. Тавричанка  (53.2 м) - Фото 2
    2-комнатная квартира, общая площадь 53м², жилая 26м², кухня 10м²

    Квартира 12--------------------Продажа квартира в новостройке, Приморский край, Надеждинский район, посёлок Тавричанка, улица Лазо--------------------
    • 53 м²
    • 2-ком
    • 2/9 эт.
    • панельный
    5 749 324 Р
    Агент
    +7 (984) Показать номер
    Посмотреть контакты
    1-к кв. Приморский край, Владивосток ул. Расула Гамзатова, 7к3 (28.5 ... - Фото 1
    1-комнатная квартира, общая площадь 28м², жилая 15м², кухня 2м²

    ЖК Гринхилс жилой квартал комфорт-класса в выгодной локации микрорайона Зеленый угол, развивающегося современного жилого кластера во Владивостоке, внутри которого реализуются проекты нового поколения, преобразуя город.Полный набор необходимой инфраструктуры,...
    • 28 м²
    • 1-ком
    • 4/22 эт.
    5 812 129 Р
    Агент
    +7 (984) Показать номер
    Посмотреть контакты
    1-к кв. Приморский край, Большой Камень ул. Ленина, 14 (36.0 м) - Фото 1
    1-к кв. Приморский край, Большой Камень ул. Ленина, 14 (36.0 м) - Фото 2
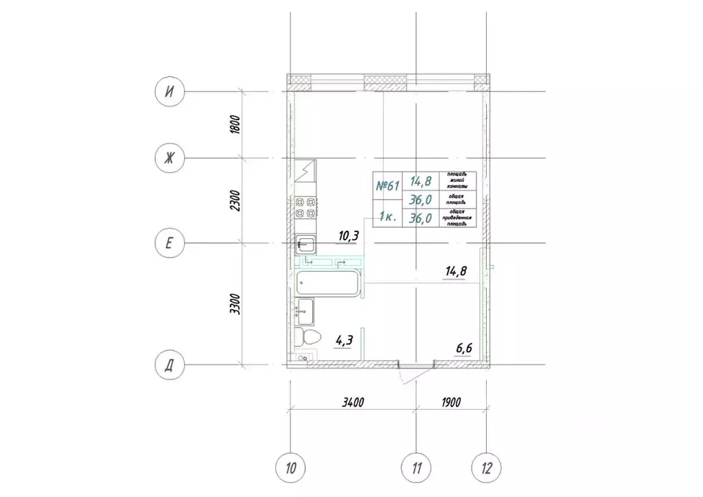
    1-комнатная квартира, общая площадь 36м²

    Продаётся 1-комнатная квартира в строящемся доме (Дом 1), срок сдачи: II-кв. 2028, общей площадью 36 кв.м., на 6 этаже. Новый жилой комплекс от Специализированного застройщика БЕРЕГОВОЙасположен по адресу: г. Большой Камень, по ул. Ленина.
    • 36 м²
    • 1-ком
    • 6/16 эт.
    • монолит
    5 868 000 Р
    Агент
    +7 (939) Показать номер
    Посмотреть контакты

    Не нашли подходящего объявления?

    Оставьте заявку, и наши риэлторы подберут квартиру в новостройке в районе Тавричанки

    (0)