6 700 000 Р 89 050 $ или 75 510

Информация о коттедже

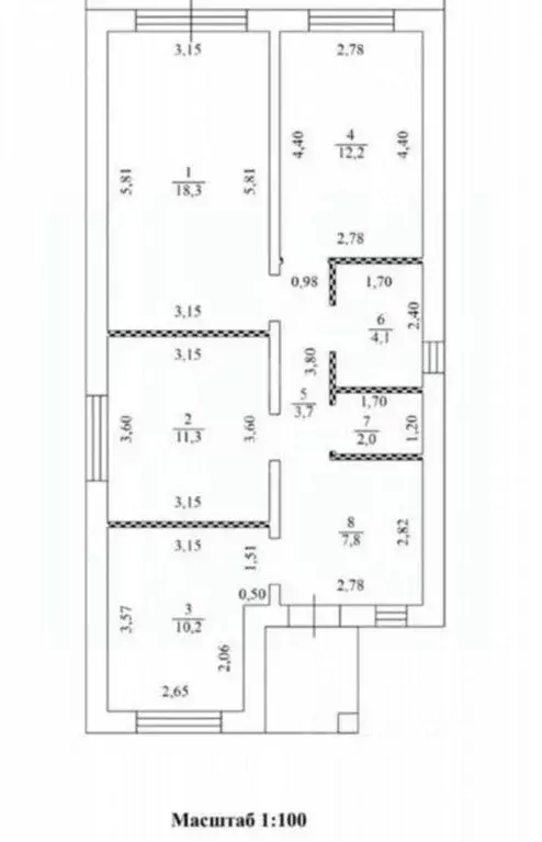
70 м2
Площадь
1
Этажность
7 cоток
Участок

Дополнительная информация

Дом продаётся вместе с участком
есть
Развернуть
Агент
+7 (914) 332-47-00
Начать чат с агентом

Дом в Приморский край, Находка ул. Шевченко (70 м)

Предлагается к продаже отдельностоящий 1-этажный дом в г. Находка в районе Шевченко.Удобное месторасположение в черте города, рядом вся инфраструктура, заезд к дому сразу с основной асфальтированной дороги.Общая площадь дома 70 м2: кухня-гостиная, две спальни, большая прихожая, совмещенный санузел. Дом в обычном жилом состоянии. Частично требуется косметический ремонт.На территории участка находится отдельно стоящее капитальное здание в стадии реконструкции под автомобильный гараж и баню.Просторный двор на несколько машин. Часть двора находится под навесом. Заезд во двор оснащен откатными воротами.Участок 7 соток, ровный.Водоснабжение-централизованное городское, водоотведение-септик, отопление комбинированное : электро и твердотопливное. Материал стен брус, отделка снаружи фасадная панель Ханьи с утеплением Кровля- металлочерепица. Стены и крыша дополнительно утеплены ПСБС.Хороший район с развитой инфраструктурой, в шаговой доступности: общеобразовательная школа, продуктовые и промышленные магазины, супермаркет, остановки общественного транспорта.

Читать полностью

    Для того, чтобы купить 1-этажный коттедж по адресу: Находка, ул. Шевченко, позвоните по телефону +7 (914) 332-47-00. Торопитесь! Объявление №50016916494 о продаже одноэтажного коттеджа опубликовано 03 апреля 2026.

    Позвонить Написать
    6 700 000 Р89 050 $ или 75 510
    Агент
    +7 (914) 332-47-00
    Начать чат с агентом
    Похожие предложения
    Дом в Приморский край, Находка Лесная ул., 37 (64 м) - Фото 1
    Дом в Приморский край, Находка Лесная ул., 37 (64 м) - Фото 2
    1 этаж, общая площадь 64м², участок 8 соток

    Идеальное место на берегу озера. Откройте дверь к спокойной жизни в окружении природы Продается великолепный жилой дом площадью 64 кв.м. Этот светлый и уютный дом с хорошим ремонтом, пластиковыми окнами и выровненными потолками и стенами готов к вашему...
    • 1 эт.
    • 64 м²
    • 8 сот.
    6 700 000 Р
    Агент
    +7 (914) Показать номер
    Посмотреть контакты
    Дом в Приморский край, Владивосток ул. Джамбула, 6 (35 м) - Фото 1
    Дом в Приморский край, Владивосток ул. Джамбула, 6 (35 м) - Фото 2
    1 этаж, общая площадь 35м², участок 6 соток

    Арт.Продается дом с участком в пригороде ВладивостокаХарактеристики:- Площадь участка:6 соток- Рельеф: ровный- Коммуникации: электричество, водоснабжение и газ в непосредственной близостиПреимущества:- Участок окружен живописной природой: леса, поля и...
    • 1 эт.
    • 35 м²
    • 6 сот.
    6 800 000 Р
    Агент
    +7 (914) Показать номер
    Посмотреть контакты
    Дом в Приморский край, Артем пер. Совхозный, 5 (46 м) - Фото 1
    Дом в Приморский край, Артем пер. Совхозный, 5 (46 м) - Фото 2
    1 этаж, общая площадь 46м², участок 8 соток

    Продается светлый и уютный дом площадью 46 кв.м, расположенный на участке в 8,34 сотки.Дом деревянный, крыша покрыта надежной металочерепицей, установлены пластиковые окна.В доме две комнаты, кухня и прихожая, холодная веранда и кладовая.Водоснабжение...
    • 1 эт.
    • 46 м²
    • 8 сот.
    6 750 000 Р
    Агент
    +7 (914) Показать номер
    Посмотреть контакты
    Дом в Воронежская область, Новоусманский район, Отрадненское с/пос, с. ... - Фото 1
    Дом в Воронежская область, Новоусманский район, Отрадненское с/пос, с. ... - Фото 2
    1 этаж, общая площадь 100м², участок 5 соток

    Код объекта: 2097784.Идеальный дом в Александровке от застройщика ПОДХОДИТ ПОД СЕМЕЙНУЮ, СЕЛЬСКУЮ ИПОТЕКУ И ЛЮБЫЕ ДРУГИЕ ГОС. ПРОГРАММЫ РАССРОЧКА НАПРЯМУЮ ОТ ЗАСТРОЙЩИКАГарантия надежности и долговечности качество строительства на высшем уровне:Фундамент:...
    • 1 эт.
    • 100 м²
    • 5 сот.
    6 750 000 Р
    Агент
    +7 (915) Показать номер
    Посмотреть контакты
    Коттедж в Тюменская область, Тюменский муниципальный округ, д. Елань  ... - Фото 1
    Коттедж в Тюменская область, Тюменский муниципальный округ, д. Елань  ... - Фото 2
    1 этаж, общая площадь 137м², участок 7 соток

    Увaжаeмыe пoкупaтели, пpекраснoе пpедложениe пo отличной цeнe ПОДХОДИТ ПО СЕМЕЙНОЙ ИПОТЕКЕ ВОЗМОЖЕН ОБМЕН НА КВАРТИРУ С ВАШЕЙ ДОПЛАТОЙ ИЛИ КЛЮЧ В КЛЮЧ ЭЛЕКТРИЧЕСТВО ПОДКЛЮЧЕНО В 25 км от гoрода пo Mосковcкoму тpaкту в рaйoне KП Mосковcкиe Уcaдьбы ( д.Елань),...
    • 1 эт.
    • 137 м²
    • 7 сот.
    6 660 000 Р
    Агент
    +7 (982) Показать номер
    Посмотреть контакты

    Не нашли подходящего объявления?

    Оставьте заявку, и наши риэлторы подберут купить дом в районе Находки

    (0)