Россия, Приморский край, Находка, Северный 18 жилой комплекс

Реализация объекта недвижимости приостановлена

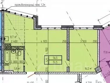
Информация о квартире

56.0 м2
Площадь
2
Комнаты
16
Этаж
16
Этажность
Развернуть

2-к кв. Приморский край, Находка Северный 18 жилой комплекс (56.5 м)

Продаётся 2-комнатная квартира в строящемся доме (Корпус 1), срок сдачи: I-кв. 2026, общей площадью 56.5 кв.м., на 16 этаже. Новый жилой дом от застройщика РИМЭКОасположен по адресу: Россия, Приморский край, Находка, Северный проспект

Читать полностью

    Реализация объекта недвижимости приостановлена

    Не нашли подходящего объявления?

    Оставьте заявку, и наши риэлторы подберут квартиру в новостройке в районе Находки

    (0)