Россия, Приморский край, Находка, Северный 18 жилой комплекс

Реализация объекта недвижимости приостановлена

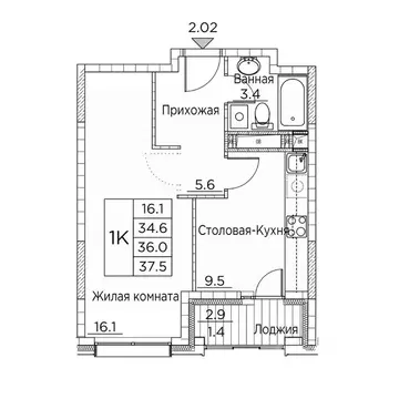
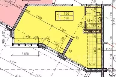
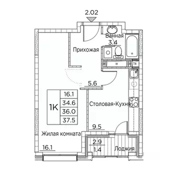
Информация о квартире

50.0 м2
Площадь
1
Комната
9
Этаж
16
Этажность
Развернуть

1-к кв. Приморский край, Находка Северный 18 жилой комплекс (50.0 м)

Продаётся 1-комнатная квартира в строящемся доме (Корпус 1), срок сдачи: I-кв. 2026, общей площадью 50 кв.м., на 9 этаже. Новый жилой дом от застройщика РИМЭКОасположен по адресу: Россия, Приморский край, Находка, Северный проспект

Читать полностью

    Реализация объекта недвижимости приостановлена

    Не нашли подходящего объявления?

    Оставьте заявку, и наши риэлторы подберут квартиру в новостройке в районе Находки

    (0)