15 499 999 Р 190 200 $ или 162 100

Информация об помещении

1
Этаж

Состояние и оснащение

Количество этажей
5
Развернуть
Агент
Надежда-Находка
+7 (914) 960-17-84
Начать чат с агентом

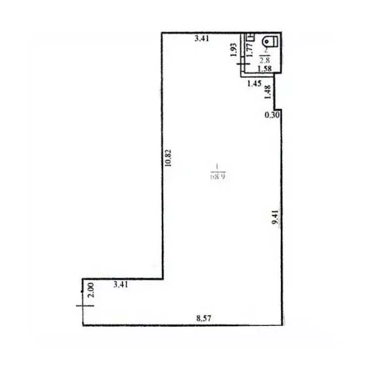
Торговая площадь в Приморский край, Находка ул. Астафьева, 17 (362 м)

Без комиссии и Агентских платежей.Организация показа БЕСПЛАТНО Просторное помещение в продажу на первом этаже пятиэтажного дома вход отдельный Площадь составляет целых 361,9 квадратных метров, что открывает перед вами огромные возможности для размещения вашего бизнеса.Помещение идеально подойдет для розничного магазина Пятёрочка , Бристоль , , кафе, студии красоты, медицинского центра или офиса. Вы сами решаете, какую сферу деятельности выбрать - мы поможем вам воплотить ваши идеи в жизнь.ПАСПОРТ ОБЪЕКТААдрес: ул. Астафьева, дом 17.Назначение: Нежилое помещениеПлощадь: 361,9 кв.м.Высота потолков: 3,3 мЭлектричество: 16 кв.тВсе необходимые коммуникации Отопление: альтернативноеПомещение теплое, большое, с удобной планировкой.Расположено на первой линии от дороги что обеспечивает автомобильный высокий трафик проходимости в Порт.Первый этаж, три отдельных входа (основной и загрузка).Спешите Звоните нам прямо сейчас и узнайте все дополнительные условия продажи. Мы готовы ответить на все ваши вопросы и проконсультировать вас по всем важным моментам. Ваш успех - наша забота Номер объекта: 1/542937/14573

Читать полностью
    Позвонить Написать
    15 499 999 Р190 200 $ или 162 100
    Агент
    Надежда-Находка
    +7 (914) 960-17-84
    Начать чат с агентом
    Похожие предложения
    Торговая площадь в Свердловская область, Екатеринбург ул. Фурманова, ... - Фото 1
    Торговая площадь в Свердловская область, Екатеринбург ул. Фурманова, ... - Фото 2
    ГОТОВЫЙ АРЕНДНЫЙ БИЗНЕС со сроком окупаемости 8,5 лет ( )Отдельный вход, вывеска, всегда есть места для парковки.Высокий пеший и автомобильный трафик (вход с ул. Фурманова)Два удобных заезда и выезда - с ул. Чапаева и Ст. РазинаПомещение полностью сдано...
    • 1/9 эт.
    15 300 000 Р
    Агент
    +7 (982) Показать номер
    Посмотреть контакты
    Торговая площадь в Свердловская область, Первоуральск ул. Ленина, 11 ... - Фото 1
    Торговая площадь в Свердловская область, Первоуральск ул. Ленина, 11 ... - Фото 2
    Встроенно-пристроенное помещение расположено в самом центре Первоуральска. Высокий пешеходный и автомобильный трафик. Вдоль всего дома идут торговые помещения: Магнит, кафе, ателье, оптика, строительный магазин, банк ВТБ. Рядом на перекрестке Чижик, Магнит...
    • 1/10 эт.
    14 900 000 Р
    Агент
    +7 (912) Показать номер
    Посмотреть контакты
    Торговая площадь - Фото 1
    Торговая площадь - Фото 2
    Торговая площадь - Фото 3
    Торговая площадь - Фото 4
    Торговая площадь - Фото 5
    реализуемая площадь 449м²

    Помещение 449.0 м2. Продам коммерческое помещение с арендатором (ТС Магнит) Площадь 449 кв.м. Магнит занимает 250 кв.м. Срок аренды до 2034 года. Есть цокольный этаж 380 кв.м. Электричество 30 кВт. Все сети центральные
    • 449 м²
    • 1/1 эт.
    15 000 000 Р
    Агент
    +7 (932) Показать номер
    Посмотреть контакты
    Помещение свободного назначения 75 м2 - Фото 1
    Помещение свободного назначения 75 м2 - Фото 2
    Помещение свободного назначения 75 м2 - Фото 3
    Помещение свободного назначения 75 м2 - Фото 4
    Помещение свободного назначения 75 м2 - Фото 5
    Помещение свободного назначения 75 м2 - Фото 6
    Помещение свободного назначения 75 м2 - Фото 7
    Помещение свободного назначения 75 м2 - Фото 8
    Помещение свободного назначения 75 м2 - Фото 9
    Помещение свободного назначения 75 м2 - Фото 10
    Помещение свободного назначения 75 м2 - Фото 11
    Помещение свободного назначения 75 м2 - Фото 12
    Помещение свободного назначения 75 м2 - Фото 13
    Помещение свободного назначения 75 м2 - Фото 14
    Помещение свободного назначения 75 м2 - Фото 15
    Помещение свободного назначения 75 м2 - Фото 16
    Помещение свободного назначения 75 м2 - Фото 17
    Помещение свободного назначения 75 м2 - Фото 18
    Помещение свободного назначения 75 м2 - Фото 19
    Помещение свободного назначения 75 м2 - Фото 20
    реализуемая площадь 75м²

    Лот:. Помещение свободного назначения 75 м2. Первая линия домов. Первый этаж. Два отдельных входа с улицы и со двора. Кабинетная планировка. Окна. Централизованные водопровод, канализация, отопление. Электроснабжение. АГЕНТАМ ПРОСЬБА НЕ ЗВОНИТЬ.
    • 75 м²
    15 000 000 Р
    Агент
    +7 (985) Показать номер
    Посмотреть контакты
    Помещение свободного назначения 80 м2 - Фото 1
    Помещение свободного назначения 80 м2 - Фото 2
    Помещение свободного назначения 80 м2 - Фото 3
    Помещение свободного назначения 80 м2 - Фото 4
    Помещение свободного назначения 80 м2 - Фото 5
    Помещение свободного назначения 80 м2 - Фото 6
    Помещение свободного назначения 80 м2 - Фото 7
    Помещение свободного назначения 80 м2 - Фото 8
    Помещение свободного назначения 80 м2 - Фото 9
    Помещение свободного назначения 80 м2 - Фото 10
    Помещение свободного назначения 80 м2 - Фото 11
    Помещение свободного назначения 80 м2 - Фото 12
    Помещение свободного назначения 80 м2 - Фото 13
    Помещение свободного назначения 80 м2 - Фото 14
    Помещение свободного назначения 80 м2 - Фото 15
    Помещение свободного назначения 80 м2 - Фото 16
    Помещение свободного назначения 80 м2 - Фото 17
    Помещение свободного назначения 80 м2 - Фото 18
    Помещение свободного назначения 80 м2 - Фото 19
    Помещение свободного назначения 80 м2 - Фото 20
    реализуемая площадь 66м²

    Лот:. Помещение свободного назначения 80 м2. Подвал, с отдельным входом. Централизованные водопровод, канализация, отопление. Электроснабжение. АГЕНТАМ ПРОСЬБА НЕ ЗВОНИТЬ.
    • 66 м²
    14 500 000 Р
    Агент
    +7 (985) Показать номер
    Посмотреть контакты

    Не нашли подходящего объявления?

    Оставьте заявку, и наши риэлторы подберут торговое помещение в районе Находки

    (0)