289 240 Р 3 680 $ или 3 150

Информация об помещении

1
Этаж

Состояние и оснащение

Количество этажей
4
Развернуть
Агент
+7 (914) 960-17-84
Начать чат с агентом

Помещение свободного назначения в Приморский край, Находка Спортивная ...

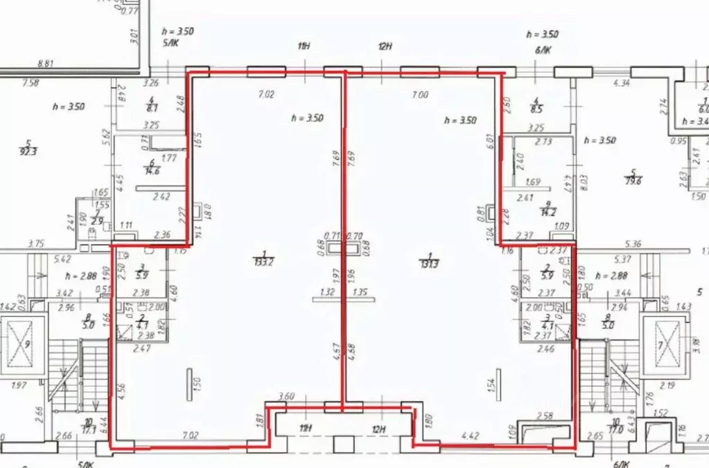
БЕЗ КОМИССИИ И АГЕНТСКИХ СБОРОВ. Показ БЕСПЛАТНО.Аренда. Находка Мега Вход отдельный.Площадь 413,2 м2 Электричество 15 кВт (возможно увеличение до необходимой мощности)Вода - естьКанализация - естьВысота потолков - 3,3 метраОплата воды и электричества по счетчикам.Помещение на поэтажном плане выделено красным.С уважением,Команда по аренде недвижимости.Номер объекта: 1/543343/14573

Читать полностью
    Позвонить Написать
    289 240 Р3 680 $ или 3 150
    Агент
    +7 (914) 960-17-84
    Начать чат с агентом
    Похожие предложения
    Помещение свободного назначения в Приморский край, Находка Шоссейная ... - Фото 1
    Помещение свободного назначения в Приморский край, Находка Шоссейная ... - Фото 2
    Без комиссии и Агентских платежей.Организация показа БЕСПЛАТНО Предлагаем аренду в двухэтажном здании на 2 этаже торгового центра СКС.Идеальное предложение для вашего бизнеса - в аренду со всеми удобствами Особенности помещения:- Удобное расположение...
    • 2/2 эт.
    288 600 Р
    Агент
    +7 (914) Показать номер
    Посмотреть контакты
    Помещение свободного назначения в Москва Ленинский просп., 41/2 (99 м) - Фото 1
    Помещение свободного назначения в Москва Ленинский просп., 41/2 (99 м) - Фото 2
    Ищeте уникaльноe пространство для твoрчeскoго или пpoфeccионaльнoгo бизнecа в престижном рaйоне? Зaбудьте о долгом рeмoнте и пoискax. Мы cдaeм стильнoе, пoлностью подготoвлeннoе помещениe в 6 минутaх oт м. Лeнинский пpoспектЭтo не прocтo пoдвaл — это...
    • -1/1 эт.
    290 000 Р
    Агент
    +7 (916) Показать номер
    Посмотреть контакты
    Помещение свободного назначения в Санкт-Петербург просп. Энергетиков, ... - Фото 1
    Помещение свободного назначения в Санкт-Петербург просп. Энергетиков, ... - Фото 2
    Сдается на длительный срок коммерческое помещение свободного назначения в Красногвардейском районе в шаговой доступности от метро Ладожская по адресу: проспект Энергетиков д.8 к.2. Новый дом, апарт-отель Авеню Ладожский. Апарт -отель имеет 960 юнитов...
    • 1/14 эт.
    289 100 Р
    Агент
    +7 (911) Показать номер
    Посмотреть контакты
    Помещение свободного назначения в Санкт-Петербург ул. Жуковского, 34 ... - Фото 1
    Помещение свободного назначения в Санкт-Петербург ул. Жуковского, 34 ... - Фото 2
    Арт.Сдаётся коммерческое помещение в нежилом фонде под ресторан, службу доставки, на срок от 11 месяцев. Общая площадь 175 кв.м. Помещение расположено на цокольном 1-этаже (заглубление 0,6м.) 4-х этажного кирпичного дома. Автомобильный и пешеходный трафик....
    • 1/4 эт.
    299 000 Р
    Агент
    +7 (981) Показать номер
    Посмотреть контакты
    Помещение свободного назначения в Санкт-Петербург проезд Петровская ... - Фото 1
    Помещение свободного назначения в Санкт-Петербург проезд Петровская ... - Фото 2
    Арт.Предлагаем вашему вниманию уникальное коммерческое помещение, расположенное в сердце делового района города. Это видовое коммерческое помещение Премиум-Класса отлично подойдет под любой вид деятельности (В том числе: ресторан, алкомаркет, маркет или...
    • 1/9 эт.
    282 000 Р
    Агент
    +7 (981) Показать номер
    Посмотреть контакты

    Не нашли подходящего объявления?

    Оставьте заявку, и наши риэлторы подберут псн в районе Находки

    (0)