Россия, Приморский край, Трудовое, улица Мандельштама, 7к1
5 785 500 Р 71 450 $ или 61 950

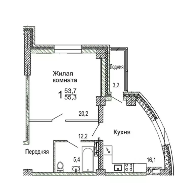
Информация о квартире

55 м2
Площадь
1
Комната
12
Этаж
24
Этажность
Развернуть
Агент
+7 (800) 333-03-93
Начать чат с агентом

1-к кв. Приморский край, Владивостокский городской округ, пос. ...

Продаётся 1-комнатная квартира в сданном доме (Дом 7 Корпус 1), срок сдачи: IV-кв. 2021, общей площадью 59.1 кв.м., на 12 этаже. Комплекс расположился по адресу поселок Трудовое, улица 50 лет Октября. Комплекс возводится по монолитно-кирпичной технологии: несущий каркас здания состоит из монолитно-железобетонной конструкции, что обеспечивает комплексу высокую сейсмоустойчивость и надежность. Наружные стены выполнены из кирпича, являющегося одним из самых экологичных и практичных материалов, обеспечивающих высокий уровень теплоотдачи в доме. Вокруг дома присутствует вся необходимая инфраструктура для жизни: транспорт, магазины, объекты социальной инфраструктуры. Выполнено благоустройство территории: зона отдыха для детей, наружное освещение, декоративное озеленение.

Читать полностью
    Позвонить Написать
    5 785 500 Р71 450 $ или 61 950
    Агент
    +7 (800) 333-03-93
    Начать чат с агентом
    Похожие предложения
    1-к кв. Приморский край, Владивостокский городской округ, пос. ... - Фото 1
    1-к кв. Приморский край, Владивостокский городской округ, пос. ... - Фото 2
    1-комнатная квартира, общая площадь 55м²

    Продаётся 1-комнатная квартира в сданном доме (Дом 7 Корпус 1), срок сдачи: IV-кв. 2021, общей площадью 59.1 кв.м., на 9 этаже. Комплекс расположился по адресу поселок Трудовое, улица 50 лет Октября. Комплекс возводится по монолитно-кирпичной технологии:...
    • 55 м²
    • 1-ком
    • 9/24 эт.
    5 806 500 Р
    Агент
    +7 (800) Показать номер
    Посмотреть контакты
    1-к кв. Приморский край, Владивостокский городской округ, пос. ... - Фото 1
    1-к кв. Приморский край, Владивостокский городской округ, пос. ... - Фото 2
    1-комнатная квартира, общая площадь 55м²

    Продаётся 1-комнатная квартира в сданном доме (Дом 7 Корпус 1), срок сдачи: IV-кв. 2021, общей площадью 55.3 кв.м., на 6 этаже. Комплекс расположился по адресу поселок Трудовое, улица 50 лет Октября. Комплекс возводится по монолитно-кирпичной технологии:...
    • 55 м²
    • 1-ком
    • 6/24 эт.
    5 806 500 Р
    Агент
    +7 (800) Показать номер
    Посмотреть контакты
    1-к кв. Приморский край, Владивостокский городской округ, пос. ... - Фото 1
    1-к кв. Приморский край, Владивостокский городской округ, пос. ... - Фото 2
    1-комнатная квартира, общая площадь 55м²

    Продаётся 1-комнатная квартира в сданном доме (Дом 7 Корпус 1), срок сдачи: IV-кв. 2021, общей площадью 59.1 кв.м., на 8 этаже. Комплекс расположился по адресу поселок Трудовое, улица 50 лет Октября. Комплекс возводится по монолитно-кирпичной технологии:...
    • 55 м²
    • 1-ком
    • 8/24 эт.
    5 806 500 Р
    Агент
    +7 (800) Показать номер
    Посмотреть контакты
    1-к кв. Приморский край, Владивостокский городской округ, пос. ... - Фото 1
    1-к кв. Приморский край, Владивостокский городской округ, пос. ... - Фото 2
    1-комнатная квартира, общая площадь 55м²

    Продаётся 1-комнатная квартира в сданном доме (Дом 7 Корпус 2), срок сдачи: II-кв. 2023, общей площадью 55.3 кв.м., на 8 этаже. Комплекс расположился по адресу поселок Трудовое, улица 50 лет Октября. Комплекс возводится по монолитно-кирпичной технологии:...
    • 55 м²
    • 1-ком
    • 8/24 эт.
    5 806 500 Р
    Агент
    +7 (800) Показать номер
    Посмотреть контакты
    1-к кв. Приморский край, Владивостокский городской округ, пос. ... - Фото 1
    1-к кв. Приморский край, Владивостокский городской округ, пос. ... - Фото 2
    1-комнатная квартира, общая площадь 55м²

    Продаётся 1-комнатная квартира в сданном доме (Дом 7 Корпус 2), срок сдачи: II-кв. 2023, общей площадью 55.3 кв.м., на 4 этаже. Комплекс расположился по адресу поселок Трудовое, улица 50 лет Октября. Комплекс возводится по монолитно-кирпичной технологии:...
    • 55 м²
    • 1-ком
    • 4/24 эт.
    5 806 500 Р
    Агент
    +7 (800) Показать номер
    Посмотреть контакты

    Не нашли подходящего объявления?

    Оставьте заявку, и наши риэлторы подберут квартиру в новостройке в районе Трудового

    (0)