Россия, Приморский край, Трудовое, улица Мандельштама, 7к1

Реализация объекта недвижимости приостановлена

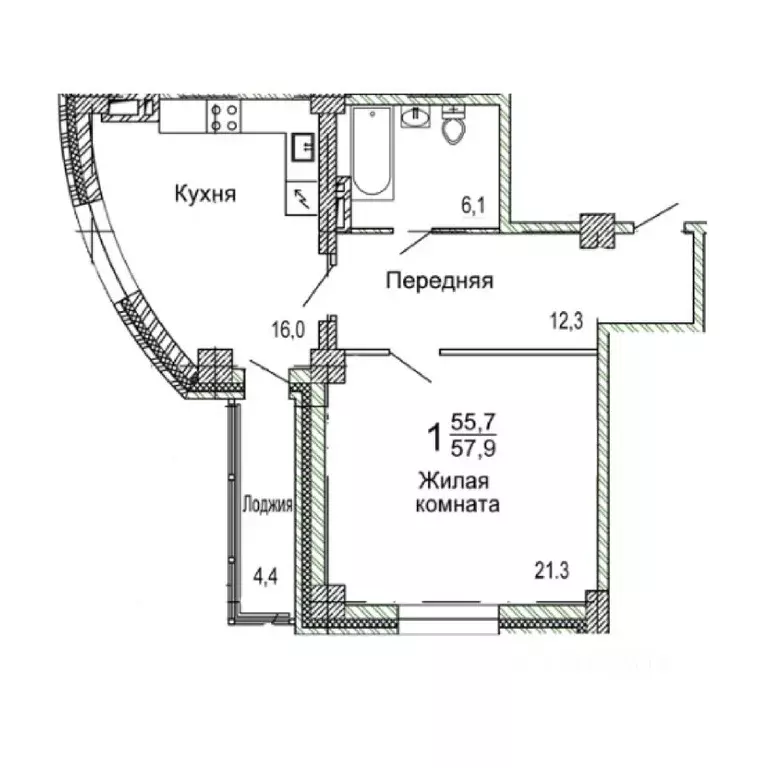
Информация о квартире

57.0 м2
Площадь
1
Комната
11
Этаж
24
Этажность
Развернуть

1-к кв. Приморский край, Владивостокский городской округ, пос. ...

Продаётся 1-комнатная квартира в сданном доме (Дом 7 Корпус 1), срок сдачи: IV-кв. 2021, общей площадью 55.2 кв.м., на 11 этаже. Комплекс расположился по адресу поселок Трудовое, улица 50 лет Октября. Комплекс возводится по монолитно-кирпичной технологии: несущий каркас здания состоит из монолитно-железобетонной конструкции, что обеспечивает комплексу высокую сейсмоустойчивость и надежность. Наружные стены выполнены из кирпича, являющегося одним из самых экологичных и практичных материалов, обеспечивающих высокий уровень теплоотдачи в доме. Вокруг дома присутствует вся необходимая инфраструктура для жизни: транспорт, магазины, объекты социальной инфраструктуры. Выполнено благоустройство территории: зона отдыха для детей, наружное освещение, декоративное озеленение.

Читать полностью

    Реализация объекта недвижимости приостановлена

    Не нашли подходящего объявления?

    Оставьте заявку, и наши риэлторы подберут квартиру в новостройке в районе Трудового

    (0)