8 100 000 Р 103 600 $ или 89 210

Информация о квартире

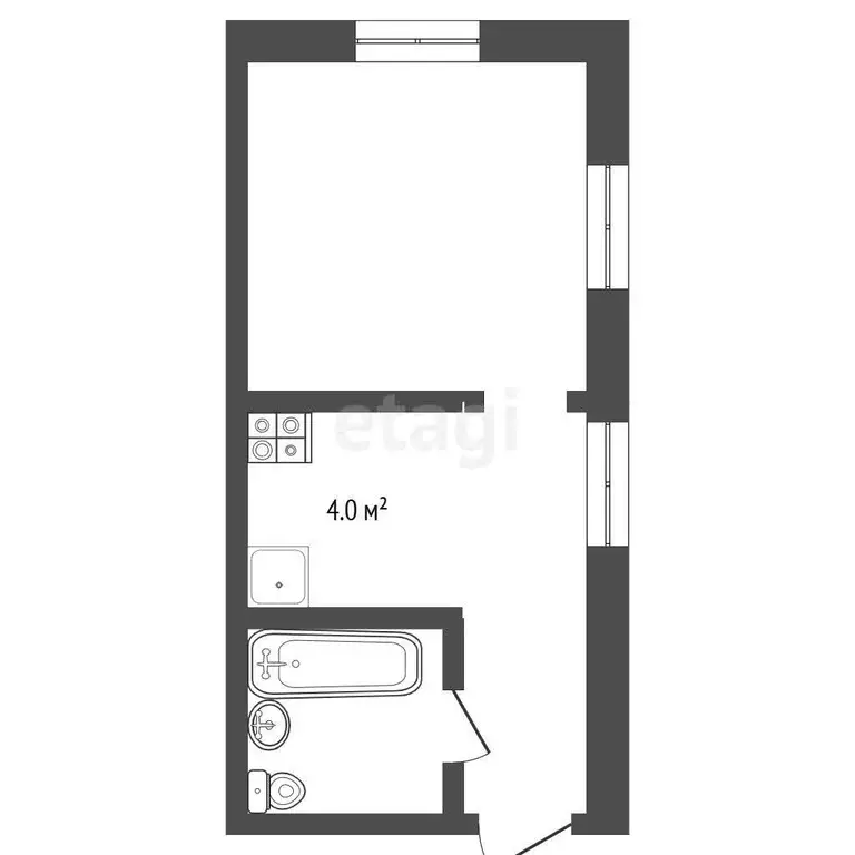
44 м2
Площадь
8 м2
Кухня
2
Комнаты
11
Этаж
12
Этажность
Развернуть
Агент
+7 (953) 214-28-88
Начать чат с агентом

Квартира, 2 комнаты, 44.6 м

Квартира расположена в современном доме 2017 года постройки, что гарантирует надежные инженерные коммуникации и соответствие актуальным строительным стандартам. Ключевые преимущества объекта — высота потолков 3 метра и большие окна высотой 2,20 метра на западную сторону, обеспечивающие обилие естественного света в течение второй половины дня. Квартира полностью готова к комфортному проживанию: выполнена качественная чистовая отделка с натяжными потолками, ламинатом и выровненными стенами, установлены пластиковые окна, надежная входная и межкомнатные двери. Особого внимания заслуживает дополнительный комфорт за счет системы «теплый пол в санузле и на застекленном балконе. Вся представленная в квартире мебель и бытовая техника, включая кухонный гарнитур, диван, кровать, шкаф-купе, холодильник, стиральную машину, кондиционер и телевизор, остаются новому владельцу, что позволяет заселиться моментально, без дополнительных затрат и хлопот. Жилой комплекс обеспечен развитой инфраструктурой безопасности: круглосуточная служба консьержей, видеонаблюдение по периметру, в лифтах и на этажах, домофон и огороженная территория. На прилегающей территории организована парковка, доступ регулируется шлагбаумом. Транспортная доступность и наличие необходимых коммуникаций, таких как интернет и кабельное телевидение, уже подключены. Объект сочетает преимущества новостройки с безупречным жилым состоянием и полной комплектацией, предлагая готовое решение для жизни без необходимости ремонта или дополнительных вложений. Код пользователя: 198878Номер в базе:

Читать полностью

    Для того, чтобы купить двухкомнатную квартиру по адресу: Уссурийск, ул. Первомайская, 76А, позвоните по телефону +7 (953) 214-28-88. Торопитесь! Объявление №30093940206 о продаже двухкомнатной квартиры опубликовано 02 марта 2026.

    Позвонить Написать
    8 100 000 Р103 600 $ или 89 210
    Агент
    +7 (953) 214-28-88
    Начать чат с агентом
    Похожие предложения
    Квартира, 1 комната, 36.2 м - Фото 1
    1-комнатная квартира, общая площадь 36м², кухня 4м²

    Квартира в Доме 1917 года Центр, парковка и ремонт «под ключ — лучшее предложение месяца Это вариант для тех, кто понимает ценность времени и качества.Заезжай и живи.Не просто квартира. Это место с историей. Дом на Ленина, 55 помнит эпохи, но встречает...
    • 36 м²
    • 1-ком
    • 1/2 эт.
    8 000 000 Р
    Агент
    +7 (967) Показать номер
    Посмотреть контакты
    Квартира, 1 комната, 38.7 м - Фото 1
    1-комнатная квартира, общая площадь 38м², кухня 4м²

    Жизнь в историческом особняке: квартира с камином в центре Уссурийска (ул. Ленина, 55).Представьте: за окном — оживленный центр города, а у вас дома — потрескивание настоящих дров в камине, высокие потолки и абсолютная тишина. Это не просто квартира,...
    • 38 м²
    • 1-ком
    • 2/2 эт.
    8 000 000 Р
    Агент
    +7 (967) Показать номер
    Посмотреть контакты
    Квартира, 2 комнаты, 51.9 м - Фото 1
    2-комнатная квартира, общая площадь 51м², кухня 6м²

    Продается двухкомнатная квартира на 4 этаже пятиэтажного кирпичного дома, находящаяся в отличном состоянии и полностью готовой к комфортному проживанию. Квартира характеризуется удачной планировкой с окнами на две стороны, что обеспечивает хорошую инсоляцию...
    • 51 м²
    • 2-ком
    • 4/5 эт.
    8 200 000 Р
    Агент
    +7 (953) Показать номер
    Посмотреть контакты
    2-к кв. Приморский край, Уссурийск ул. Александра Францева, 13 (52.4 ... - Фото 1
    2-к кв. Приморский край, Уссурийск ул. Александра Францева, 13 (52.4 ... - Фото 2
    2-комнатная квартира, общая площадь 52м², жилая 35м², кухня 9м²

    Код объекта: 2018676.Предлагается к покупке светлая 2х-комнатная квартира. Изолированные комнаты, окна выходят на западную и восточную стороны.+ Теплая.+ Просторная кухня.+ Большая застекленная лоджия.+ Комнаты на разные стороны дома.+ Спокойные адекватные...
    • 52 м²
    • 2-ком
    • 3/5 эт.
    • панельный
    8 100 000 Р
    Агент
    +7 (914) Показать номер
    Посмотреть контакты
    Квартира, 2 комнаты, 44.6 м - Фото 1
    2-комнатная квартира, общая площадь 44м², кухня 8м²

    К продаже предлагается просторная 2-комнатная квартира в монолитном доме с отличной планировкой. Объект полностью готов к проживанию: выполнен евроремонт с выравниванием стен, уложен паркет и система «теплый пол , установлены натяжные потолки, пластиковые...
    • 44 м²
    • 2-ком
    • 8/16 эт.
    8 100 000 Р
    Агент
    +7 (953) Показать номер
    Посмотреть контакты

    Не нашли подходящего объявления?

    Оставьте заявку, и наши риэлторы подберут квартиру в районе Уссурийска

    (0)