Реализация объекта недвижимости приостановлена

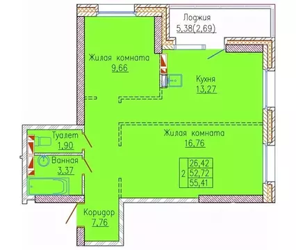
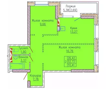
Информация о квартире

55.0 м2
Площадь
2
Комнаты
9
Этаж
24
Этажность
Развернуть

2-к кв. Приморский край, Владивосток ул. 2-я Строительная, 27 (55.0 м)

Продаётся 2-комнатная квартира в сданном доме (Дом 2), срок сдачи: IV-кв. 2023, общей площадью 57.33 кв.м., на 9 этаже. Новый жилой дом от застройщика ДСКасположен по адресу город Владивосток, улица Новожилова.

Читать полностью

    Реализация объекта недвижимости приостановлена

    Не нашли подходящего объявления?

    Оставьте заявку, и наши риэлторы подберут квартиру в новостройке в районе Владивостока

    (0)