Реализация объекта недвижимости приостановлена

Информация о квартире

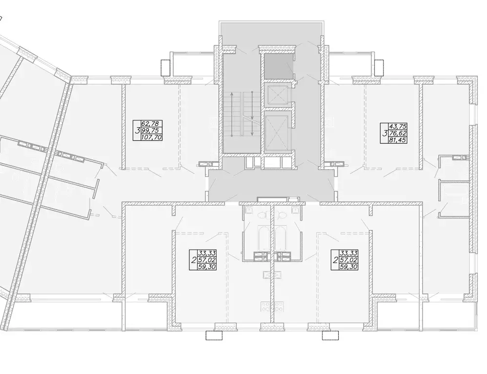
99.0 м2
Площадь
3
Комнаты
15
Этаж
17
Этажность
Развернуть

3-к кв. Приморский край, Владивосток ул. Североморская, 4 (99.4 м)

Продаётся 3-комнатная квартира в сданном доме (Дом 4), срок сдачи: I-кв. 2023, общей площадью 99.4 кв.м., на 15 этаже. По данным сайта застройщика жилой комплекс Восточныйасположен в одном из самых перспективно застраеваемом районе. Идеальный для счастливой жизни район с развивающейся инфраструктурой и комфортным доступом в любой район города Владивостока, благодаря расположению федеральной трассы Де-Фриз - Седанка - Патрокл

Читать полностью

    Реализация объекта недвижимости приостановлена

    Не нашли подходящего объявления?

    Оставьте заявку, и наши риэлторы подберут квартиру в новостройке в районе Владивостока

    (0)