Реализация объекта недвижимости приостановлена

Информация о квартире

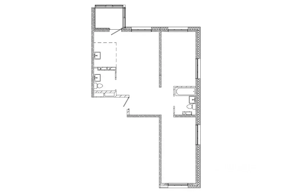
81.0 м2
Площадь
2
Комнаты
10
Этаж
10
Этажность

Дополнительная информация

Тип дома
монолит
Развернуть

2-к кв. Приморский край, Владивосток Посейдония жилой комплекс, 3 ...

Продаётся 2-комнатная квартира в строящемся доме (Дом 3), срок сдачи: I-кв. 2026, общей площадью 81.36 кв.м., на 10 этаже. Новый жилой комплекс Посидония от застройщика Ренессанс Активасположен по адресу город Россия, Приморский край, Владивосток, Катерная улица.

Читать полностью

    Реализация объекта недвижимости приостановлена

    Не нашли подходящего объявления?

    Оставьте заявку, и наши риэлторы подберут квартиру в новостройке в районе Владивостока

    (0)