Реализация объекта недвижимости приостановлена

Информация о квартире

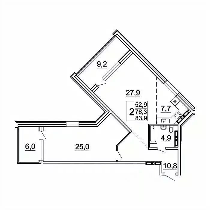
83.0 м2
Площадь
2
Комнаты
15
Этаж
27
Этажность
Развернуть

2-к кв. Приморский край, Владивосток Лесная ул., 1В/1 (83.9 м)

Продаётся 2-комнатная квартира в строящемся доме (Дом 1), срок сдачи: I-кв. 2026, общей площадью 83.9 кв.м., на 15 этаже. Новый жилой дом от застройщика ОСК Регионасположен по адресу город Владивосток, Лесная улица.

Читать полностью

    Реализация объекта недвижимости приостановлена

    Не нашли подходящего объявления?

    Оставьте заявку, и наши риэлторы подберут квартиру в новостройке в районе Владивостока

    (0)