Реализация объекта недвижимости приостановлена

Информация о квартире

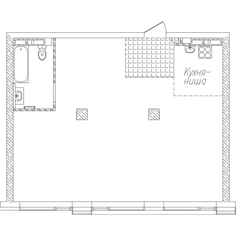
69.0 м2
Площадь
2
Комнаты
6
Этаж
26
Этажность

Дополнительная информация

Тип дома
монолит
Развернуть

2-к кв. Приморский край, Владивосток ул. Маковского, 55к4 (69.6 м)

Продаётся 2-комнатная квартира в строящемся доме (Корпус 3), срок сдачи: I-кв. 2026, общей площадью 69.59 кв.м., на 6 этаже. Сады Маковского - новый жилой комплекс на Санаторной, с видом на Амурский залив, сочетающий в себе преимущества городской и загородной жизни. Отличительной чертой архитектурного решения комплекса является сочетание современной городской инфраструктуры и развитого благоустройства, создающего ощущение жизни на природе.

Читать полностью

    Реализация объекта недвижимости приостановлена

    Не нашли подходящего объявления?

    Оставьте заявку, и наши риэлторы подберут квартиру в новостройке в районе Владивостока

    (0)