 
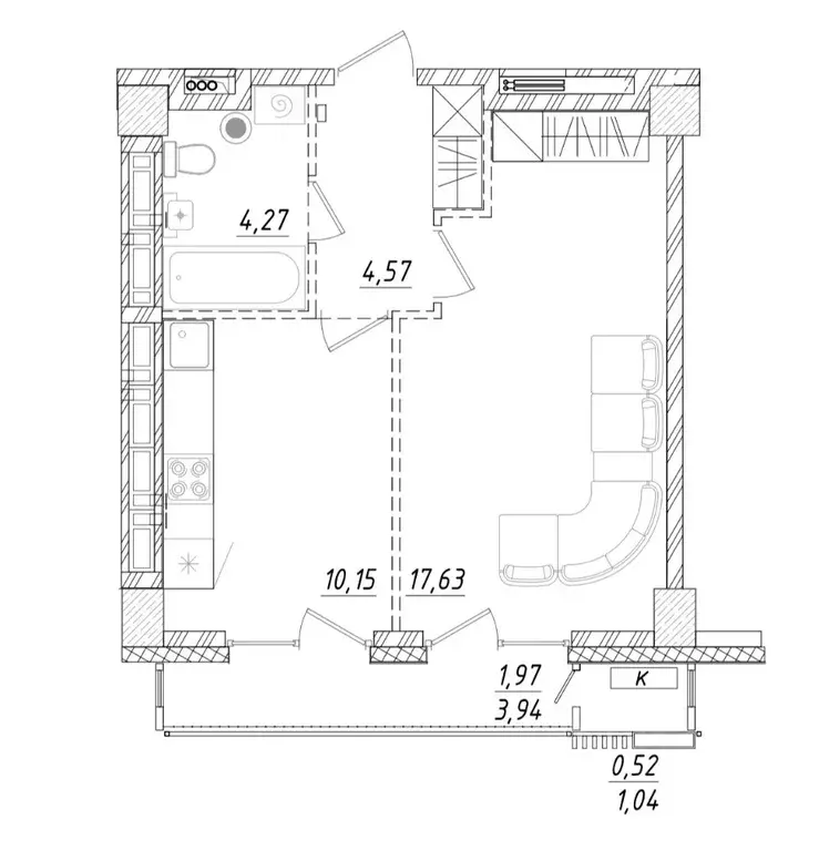
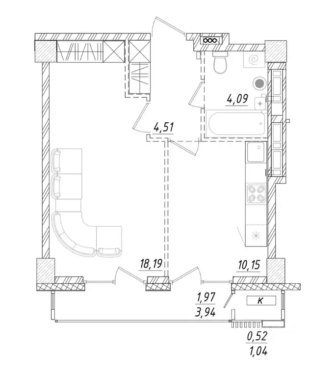
										Продаётся 1-комнатная квартира в строящемся доме (Дом 1), срок сдачи: III-кв. 2027, общей площадью 48.03 кв.м., на 9 этаже. Новый жилой комплекс Квартал Чехова от Специализированного застройщика Сити Комплексасположен по адресу: г. Владивосток, по ул. Достоевского.
 
								 
											
                                                                         
											
                                                                         
											
                                                                         
											
                                                                         
											
                                                                        Оставьте заявку, и наши риэлторы подберут квартиру в новостройке в районе Владивостока
