Реализация объекта недвижимости приостановлена

Информация о квартире

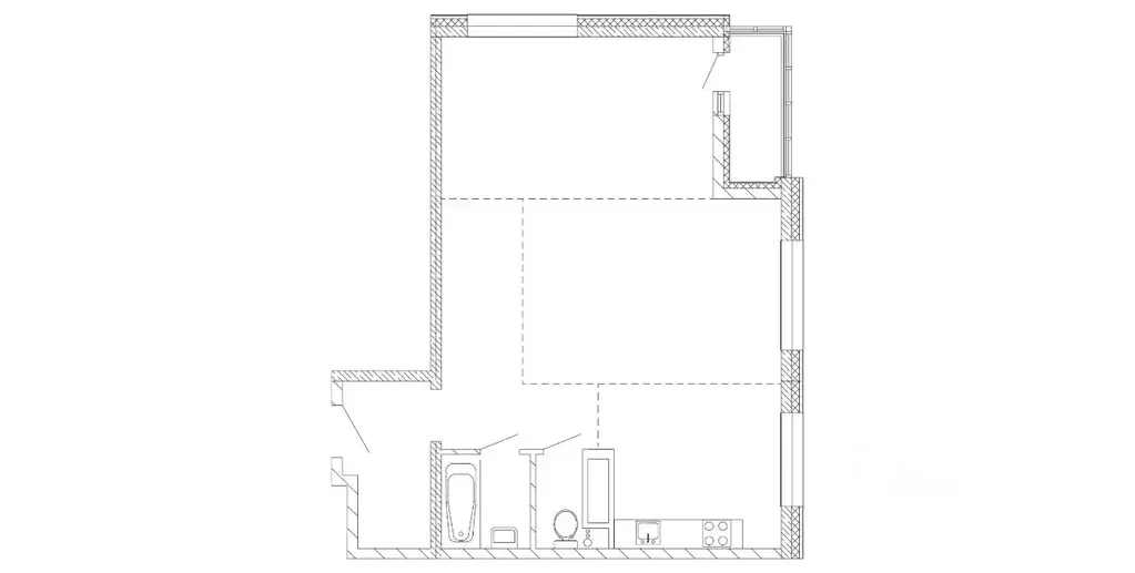
64.0 м2
Площадь
2
Комнаты
20
Этаж
24
Этажность
Развернуть

2-к кв. Приморский край, Владивосток Снеговая ул., 9к1 (64.62 м)

Продаётся 2-комнатная квартира в сданном доме (Снеговая, 9к1 (Дом 1, корпус 8,9)), срок сдачи: II-кв. 2025, общей площадью 64.62 кв.м., на 20 этаже. Новый жилой комплекс Наследие от застройщика Строй Проектасположен по адресу город Владивосток, Снеговая улица.

Читать полностью

    Реализация объекта недвижимости приостановлена

    Не нашли подходящего объявления?

    Оставьте заявку, и наши риэлторы подберут квартиру в новостройке в районе Владивостока

    (0)