Реализация объекта недвижимости приостановлена

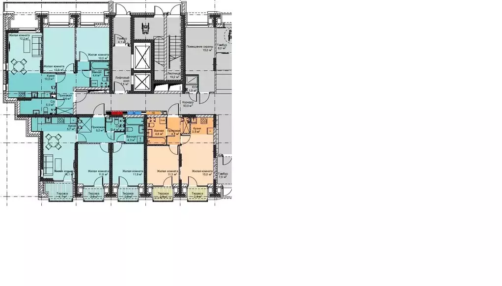
Информация о квартире

45.0 м2
Площадь
2
Комнаты
1
Этаж
16
Этажность
Развернуть

2-к кв. Приморский край, Владивосток Бам мкр, (45.1 м)

Продаётся 2-комнатная квартира в строящемся доме (Дом 1), срок сдачи: III-кв. 2025, общей площадью 45.1 кв.м., на 1 этаже. Новый жилой комплекс Футурист от застройщика СИК Девеломпент-югасположен по адресу город Владивосток, улица Карбышева.

Читать полностью

    Реализация объекта недвижимости приостановлена

    Не нашли подходящего объявления?

    Оставьте заявку, и наши риэлторы подберут квартиру в новостройке в районе Владивостока

    (0)