8 469 999 Р 104 100 $ или 89 740

Информация о квартире

52 м2
Площадь
22 м2
Жилая
20 м2
Кухня
2
Комнаты
5
Этаж
18
Этажность

Дополнительная информация

Тип дома
монолит
Развернуть
Агент
+7 (984) 729-43-75
Начать чат с агентом

2-к кв. Приморский край, Владивосток Клуб 25 жилой комплекс, 1 (52.65 ...

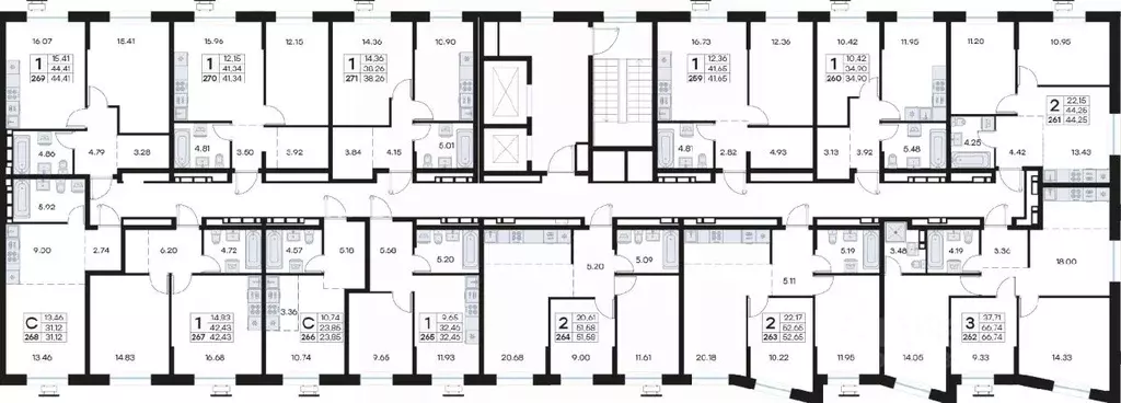
Продается 2-комн. квартира на 5-м этаже в квартале GloraX Клубный. GloraX Клубный - уникальный видовой проект с выделяющейся архитектурой в развитом районе Владивостока. Общая площадь лота составляет 52,65 кв. м, из которых 22,17 кв. м отведено под жилую и 20,18 кв. м под кухонную зону. Номер квартиры - 263.Преимущества квартиры:евро-трехкомнатная квартира.Преимущества проекта:• Квартиры с панорамными видами на бухту Патрокл, маяк Басаргина и остров Русский• Планировочные решения под любой жизненный сценарий от 23 до 67 м• Гардеробные комнаты, увеличенные панорамные окна, просторные кухни-гостиные• Эксклюзивное благоустройство: продуманное зонирование, игровые и спортивные площадки, площадка для стритбола, амфитеатр• Премиальный дизайн входных групп с лаунж-зоной• Безбарьерная среда, закрытая территория, видеонаблюдение• Лапомойки, колясочные и туалеты на первом этаже• Двухуровневый подземный паркинг на 350 машино-мест с лифтом на жилые этажи• Келлеры на цокольном этаже для хранения сезонных вещей с доступом на лифте• Современный ландшафтный дизайн комплекса от DEREVOPARKGloraX Клубный заповедник в черте мегаполиса. Комплекс тщательно продуман для максимального удобства и обеспечения безопасности его жителей. Квартал расположен в одном из самых современных развивающихся районов города: совсем рядом раскинулась живописная бухта Патрокл, где можно прогуляться по облагороженной пешеходной набережной, заглянуть на пляж или в школу серфинга. Комплекс имеет прекрасную транспортную доступность: рядом проходит объездная трасса СеданкаПатрокл, а до центар можно доехать всего за 15 минут.Проект включает 3 монолитных корпуса, каждый из которых спроектирован с акцентом на комфорт, безопасность и современный образ жизни рядом с уникальной природой. Общий двор создает приватную территорию для житей комплекса.В комплексе предусмотрен двухуровневый подземный паркинг на 350 машино-мест с доступом прямо с жилых этажей. Паркинг оборудован современными системами видеонаблюдения, контроля въезда-выезда и пожаротушения. На цокольном этаже размещаются келлеры для хранения сезонных и габаритных вещей. Доступ к кладовым на лифте с жилых этажей. Современный ландшафтный дизайн жилого комплекса GloraX Клубный создан ведущей российской студией DEREVOPARK. Во дворе для детей всех возрастов предусмотрены различные игровые площадки с лазалками, батутами, качелями и песочницей. В центре расположен специальный зеленый остров , где взрослые могут отдохнуть на качелях и гамаках в тени больших деревьев. Для любителей спорта предусмотрены две специальные спортивные площадки для настольного тенниса и стритбола — для зрителей тоже найдется место А еще на территории комплекса будет дорожка для роллеров и любителей покататься на велосипеде, самокате или скейте.В шаговой доступности располагаются все необходимые объекты социальной и коммерческой инфраструктуры.Цена указана при 100 оплате

Читать полностью
    Позвонить Написать
    8 469 999 Р104 100 $ или 89 740
    Агент
    +7 (984) 729-43-75
    Начать чат с агентом
    Похожие предложения в Владивостоке
    2-к кв. Приморский край, Владивосток Клуб 25 жилой комплекс, 1 (51.43 ... - Фото 1
    2-к кв. Приморский край, Владивосток Клуб 25 жилой комплекс, 1 (51.43 ... - Фото 2
    2-комнатная квартира, общая площадь 51м², жилая 21м², кухня 21м²

    Продается 2-комн. квартира на 7-м этаже в квартале GloraX Клубный. GloraX Клубный - уникальный видовой проект с выделяющейся архитектурой в развитом районе Владивостока. Общая площадь лота составляет 51,43 кв. м, из которых 21,02 кв. м отведено под жилую...
    • 51 м²
    • 2-ком
    • 7/18 эт.
    • монолит
    8 409 999 Р
    Агент
    +7 (984) Показать номер
    Посмотреть контакты
    2-к кв. Приморский край, Владивосток Клуб 25 жилой комплекс, 1 (51.43 ... - Фото 1
    2-к кв. Приморский край, Владивосток Клуб 25 жилой комплекс, 1 (51.43 ... - Фото 2
    2-комнатная квартира, общая площадь 51м², жилая 21м², кухня 21м²

    Продается 2-комн. квартира на 8-м этаже в квартале GloraX Клубный. GloraX Клубный - уникальный видовой проект с выделяющейся архитектурой в развитом районе Владивостока. Общая площадь лота составляет 51,43 кв. м, из которых 21,02 кв. м отведено под жилую...
    • 51 м²
    • 2-ком
    • 8/18 эт.
    • монолит
    8 489 999 Р
    Агент
    +7 (984) Показать номер
    Посмотреть контакты
    2-к кв. Приморский край, Владивосток Клуб 25 жилой комплекс, 1 (51.58 ... - Фото 1
    2-к кв. Приморский край, Владивосток Клуб 25 жилой комплекс, 1 (51.58 ... - Фото 2
    2-комнатная квартира, общая площадь 51м², жилая 20м², кухня 20м²

    Продается 2-комн. квартира на 8-м этаже в квартале GloraX Клубный. GloraX Клубный - уникальный видовой проект с выделяющейся архитектурой в развитом районе Владивостока. Общая площадь лота составляет 51,58 кв. м, из которых 20,61 кв. м отведено под жилую...
    • 51 м²
    • 2-ком
    • 8/18 эт.
    • монолит
    8 429 999 Р
    Агент
    +7 (984) Показать номер
    Посмотреть контакты
    2-к кв. Приморский край, Владивосток Клуб 25 жилой комплекс, 1 (51.58 ... - Фото 1
    2-к кв. Приморский край, Владивосток Клуб 25 жилой комплекс, 1 (51.58 ... - Фото 2
    2-комнатная квартира, общая площадь 51м², жилая 20м², кухня 20м²

    Продается 2-комн. квартира на 11-м этаже в квартале GloraX Клубный. GloraX Клубный - уникальный видовой проект с выделяющейся архитектурой в развитом районе Владивостока. Общая площадь лота составляет 51,58 кв. м, из которых 20,61 кв. м отведено под...
    • 51 м²
    • 2-ком
    • 11/18 эт.
    • монолит
    8 599 999 Р
    Агент
    +7 (984) Показать номер
    Посмотреть контакты
    2-к кв. Приморский край, Владивосток Клуб 25 жилой комплекс, 1 (52.65 ... - Фото 1
    2-к кв. Приморский край, Владивосток Клуб 25 жилой комплекс, 1 (52.65 ... - Фото 2
    2-комнатная квартира, общая площадь 52м², жилая 22м², кухня 20м²

    Продается 2-комн. квартира на 6-м этаже в квартале GloraX Клубный. GloraX Клубный - уникальный видовой проект с выделяющейся архитектурой в развитом районе Владивостока. Общая площадь лота составляет 52,65 кв. м, из которых 22,17 кв. м отведено под жилую...
    • 52 м²
    • 2-ком
    • 6/18 эт.
    • монолит
    8 559 999 Р
    Агент
    +7 (984) Показать номер
    Посмотреть контакты

    Не нашли подходящего объявления?

    Оставьте заявку, и наши риэлторы подберут квартиру в новостройке в районе Владивостока

    (0)