Реализация объекта недвижимости приостановлена

Информация о квартире

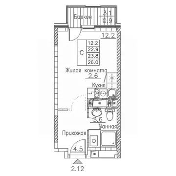
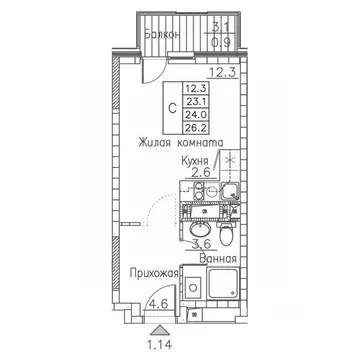
35.0 м2
Площадь
10.0 м2
Жилая
13.0 м2
Кухня
1
Комната
8
Этаж
25
Этажность

Дополнительная информация

Тип дома
монолит
Развернуть

1-к кв. Приморский край, Владивосток ул. Нейбута, 135 (35.6 м)

Продается 1-комн. квартира на 8-м этаже в жилом квартале GloraX Зелёные высоты — проекте в тихой зелёной локации. Общая площадь квартиры 35,60 кв. м, из которых 10,40 кв. м включая 10,40 кв. м жилого пространства и 13,80 кв. м кухни. Номер квартиры - 577.Преимущества квартиры:компактная евро-2; лоджия.Преимущества проекта:• Идеальное сочетание городской и загородной жизни• Сдаем в 2025 году• Уютный зелёный район с развитой инфраструктурой• Великолепные виды на Вечнозеленый сквер и лесопарк на 150 Га• Видеонаблюдение, IP-домофон, Wi-Fi на территории,• Дизайнерские входные группы• Безбарьерная среда, колясочные, туалеты на 1 этаже, лапомойки• Эксклюзивное благоустройство территории • Подземный паркинг на 235 машино-мест с лифтом на жилые этажи• Индивидуальные кладовые от 3 до 7 кв. м• Черновая отделка для реализации любых дизайнерских идейGloraX Зелёные высоты — современный жилой проект, сочетающий преимущества городской и пригородной жизни. Комплекс тщательно продуман для максимального удобства и обеспечения безопасности жителей. Квартал расположен в зеленом, живописном и активно развивающемся районе Зеленый Угол, вдали от серой массовой застройки. Жители GloraX Зелёные высоты смогут насладждаться прогулками в Вечнозелёном сквере или лесопарке. В непосредственной близости находятся остановки общественного транспорта и автомобильный подъезд со стороны Нейбута. Скоро также появится выездом на трассу Де-Фриз-Седанка, что обеспечит быстрый доступ в любую часть города и пригород.Проект включает 2 корпуса, каждый из которых спроектирован с акцентом на комфорт, безопасность и современный образ жизни.В комплексе предусмотрен подземный паркинг на 235 машиномест с доступом прямо с жилых этажей. Паркинг оборудован современными системами видеонаблюдения, контроля въезда-выезда и пожаротушения. Цокольный этаж здания отведен под индивидуальные кладовые площадью от 3 до 7 квадратных метров, которые можно использовать для хранения сезонных вещей. Доступ к кладовым - на лифте с жилых этажей.Территория жилого квартала благоустроена и включает игровые зоны и спортивные площадки для детей различных возрастных групп, уютные зоны отдыха со скамейками и универсальную воркаут-площадку для активного досуга.В шаговой доступности располагаются все необходимые объекты социальной инфраструктуры.Узнайте больше в отделе продаж — выберите свою квартиру в GloraX Зелёные высоты уже сегодня

Читать полностью

    Реализация объекта недвижимости приостановлена

    Не нашли подходящего объявления?

    Оставьте заявку, и наши риэлторы подберут квартиру в новостройке в районе Владивостока

    (0)