6 327 000 Р 77 590 $ или 66 650

Информация о квартире

28 м2
Площадь
1
Комната
12
Этаж
25
Этажность
Развернуть
Агент
Риелтор
+7 (800) 333-03-93
Начать чат с агентом

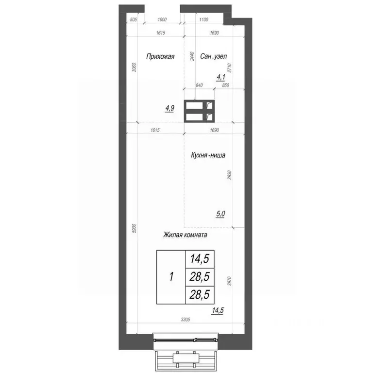
1-к кв. Приморский край, Владивосток ул. Невельского, 4с2 (28.5 м)

Продаётся 1-комнатная квартира в строящемся доме (Корпус 1), срок сдачи: I-кв. 2027, общей площадью 28.5 кв.м., на 12 этаже. Жилой комплекс переменной этажности, с современной инфраструктурой, благоустроенной территорией и теплым многоуровневым паркингом. Удачно расположен в районе Луговая. Просторные квартиры, с большими окнами, комфортными планировкам. Уютный двор-парк. Все, что нужно для комфортной жизни. Сдача дома 4 квартал 2026

Читать полностью
    Позвонить Написать
    6 327 000 Р77 590 $ или 66 650
    Агент
    Риелтор
    +7 (800) 333-03-93
    Начать чат с агентом
    Похожие предложения
    1-к кв. Приморский край, Владивосток Сердце квартала жилой комплекс ... - Фото 1
    1-комнатная квартира, общая площадь 33м²

    Продаётся 1-комнатная квартира в строящемся доме (Дом 1), срок сдачи: II-кв. 2027, общей площадью 33.9 кв.м., на 4 этаже. Новый жилой комплекс Сердце квартала от Специализированного застройщика ТИМ-ГРУППасположен по адресу: г. Владивосток, по ул. Нейбута....
    • 33 м²
    • 1-ком
    • 4/20 эт.
    • монолит
    6 355 457 Р
    Агент
    +7 (932) Показать номер
    Посмотреть контакты
    1-к кв. Приморский край, Владивосток ул. Нейбута, 135 (39.4 м) - Фото 1
    1-к кв. Приморский край, Владивосток ул. Нейбута, 135 (39.4 м) - Фото 2
    1-комнатная квартира, общая площадь 39м², жилая 11м², кухня 13м²

    Продается 1-комн. квартира на 1-м этаже в жилом квартале GloraX Зелёные высоты — проекте в тихой зелёной локации. Общая площадь квартиры 39,40 кв. м, из которых 11,20 кв. м включая 11,20 кв. м жилого пространства и 13,80 кв. м кухни. Номер квартиры...
    • 39 м²
    • 1-ком
    • 1/25 эт.
    • монолит
    6 289 999 Р
    Агент
    +7 (984) Показать номер
    Посмотреть контакты
    1-к кв. Приморский край, Владивосток ул. Расула Гамзатова, 7к3 (37.6 ... - Фото 1
    1-комнатная квартира, общая площадь 37м², жилая 16м², кухня 9м²

    Жилой комплекс Гринхилсасположен во Владивостоке в микрорайоне Зелёный угол. Комплекс состоит из трёх двухсекционных домов комфорт-класса разной этажности. На территории будет расположен каскадный двор-парк с зонами для отдыха, прогулок и различными...
    • 37 м²
    • 1-ком
    • 5/22 эт.
    6 215 280 Р
    Агент
    +7 (984) Показать номер
    Посмотреть контакты
    Студия Приморский край, Владивосток ул. Нейбута (32.5 м) - Фото 1
    Студия Приморский край, Владивосток ул. Нейбута (32.5 м) - Фото 2
    студия, общая площадь 32м², жилая 16м², кухня 5м²

    Предлагается квартира студия комфорт-класса 32,5 кв.м в корпусе 5 на 2 этаже, в ЖК Квартал Нейбута Квартира с чистовой отделкой. Доступность дополнительных опций уточняйте у застройщика.Приобрести квартиру возможно по специальным акциям от застройщика,...
    • 32 м²
    • студия-ком
    • 2/30 эт.
    • монолит
    6 393 758 Р
    Агент
    +7 (984) Показать номер
    Посмотреть контакты
    Студия Приморский край, Владивосток Квартал Нейбута жилой комплекс, ... - Фото 1
    Студия Приморский край, Владивосток Квартал Нейбута жилой комплекс, ... - Фото 2
    студия, общая площадь 23м², жилая 11м², кухня 5м²

    Предлагается квартира студия комфорт-класса 23,73 кв.м в корпусе 1.2 на 26 этаже, в ЖК Квартал Нейбута Квартира с чистовой отделкой. Доступность дополнительных опций уточняйте у застройщика.Приобрести квартиру возможно по специальным акциям от застройщика,...
    • 23 м²
    • студия-ком
    • 26/26 эт.
    • монолит
    6 208 100 Р
    Агент
    +7 (984) Показать номер
    Посмотреть контакты

    Не нашли подходящего объявления?

    Оставьте заявку, и наши риэлторы подберут квартиру в новостройке в районе Владивостока

    (0)