Россия, Приморский край, Владивосток, Босфорский Парк жилой комплекс, 5
9 037 950 Р 111 300 $ или 96 320

Информация о квартире

44 м2
Площадь
15 м2
Жилая
17 м2
Кухня
1
Комната
5
Этаж
17
Этажность

Дополнительная информация

Тип дома
монолит
Развернуть
Агент
+7 (984) 729-52-20
Начать чат с агентом

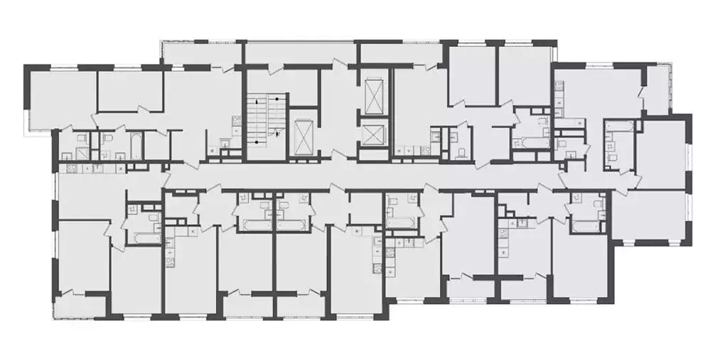
1-к кв. Приморский край, Владивосток Босфорский Парк жилой комплекс, 5 ...

Продаётся 1-комн. квартира площадью 44,5 кв.м на 5 этаже 17 этажного дома (Корпус 5, Секция 1) проекта ПИК Босфорский парк. Светлый просторный подъезд на уровне земли, функциональная планировка, большие окна, предчистовая отделка. Жилой квартал Босфорский паркасположен на юге Владивостока, в районе живописной бухты Патрокл. Из окон домов будет открываться прекрасный вид на залив и лес. Дорога до центра Владивостока на автомобиле займёт 20 минут. В Босфорском парке появится 20 жилых корпусов с магазинами, кафе и полезными сервисами на первых этажах. На территории проекта предусмотрены два многоуровневых надземных паркинга. В квартале будет много мест для отдыха и активных игр, три вида парков и даже родник, который будет перетекать в ручей с порогами и препятствиями. На территории парков появятся амфитеатры и террасы. Здесь жители смогут отдыхать, гулять, общаться, учиться или работать на свежем воздухе. На естественных склонах будут обустроены игровые зоны для детей - с горками, сетками, канатами и скалолазными зацепами. Всё это - новый формат благоустройства Многоуровневый ландшафт , который разработан специально для регионов с перепадами высот. Ещё на этапе проектирования архитекторы учли все особенности рельефа, чтобы создать органичное пространство. Артикул 937456 (Застройщик ООО СПЕЦИАЛИЗИРОВАННЫЙ ЗАСТРОЙЩИК ПИК-ПРИМОРЬЕ )

Читать полностью
    Позвонить Написать
    9 037 950 Р111 300 $ или 96 320
    Агент
    +7 (984) 729-52-20
    Начать чат с агентом
    Похожие предложения
    1-к кв. Приморский край, Владивосток Босфорский Парк жилой комплекс, 5 ... - Фото 1
    1-к кв. Приморский край, Владивосток Босфорский Парк жилой комплекс, 5 ... - Фото 2
    1-комнатная квартира, общая площадь 40м², жилая 9м², кухня 16м²

    Продаётся 1-комн. квартира площадью 40,5 кв.м на 13 этаже 17 этажного дома (Корпус 5, Секция 1) проекта ПИК Босфорский парк. Светлый просторный подъезд на уровне земли, функциональная планировка, большие окна, предчистовая отделка. Жилой квартал Босфорский...
    • 40 м²
    • 1-ком
    • 13/17 эт.
    • монолит
    8 930 736 Р
    Агент
    +7 (984) Показать номер
    Посмотреть контакты
    1-к кв. Приморский край, Владивосток Босфорский Парк жилой комплекс, 5 ... - Фото 1
    1-к кв. Приморский край, Владивосток Босфорский Парк жилой комплекс, 5 ... - Фото 2
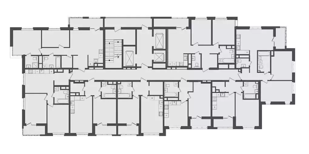
    1-комнатная квартира, общая площадь 44м², жилая 15м², кухня 17м²

    Продаётся 1-комн. квартира площадью 44,5 кв.м на 7 этаже 17 этажного дома (Корпус 5, Секция 1) проекта ПИК Босфорский парк. Светлый просторный подъезд на уровне земли, функциональная планировка, большие окна, предчистовая отделка. Жилой квартал Босфорский...
    • 44 м²
    • 1-ком
    • 7/17 эт.
    • монолит
    9 015 700 Р
    Агент
    +7 (984) Показать номер
    Посмотреть контакты
    2-к кв. Приморский край, Владивосток ул. 3-я Поселковая, 16/1 (53.6 м) - Фото 1
    2-к кв. Приморский край, Владивосток ул. 3-я Поселковая, 16/1 (53.6 м) - Фото 2
    2-комнатная квартира, общая площадь 53м², жилая 36м², кухня 12м²

    Идеальная квартира для молодой семьиКухня-столовая 14,2 кв.м для семейных завтраков и ужинов. Просторная родительская спальня 13,7 кв.м с выходом на лоджию, где можно наслаждаться свежим воздухомУютная детская комната 12,8 кв.м для занятий учебой и отдыхаПрихожая...
    • 53 м²
    • 2-ком
    • 1/23 эт.
    • монолит
    8 906 130 Р
    Агент
    +7 (984) Показать номер
    Посмотреть контакты
    1-к кв. Приморский край, Владивосток ул. 3-я Поселковая, 16/1 (43.0 м) - Фото 1
    1-к кв. Приморский край, Владивосток ул. 3-я Поселковая, 16/1 (43.0 м) - Фото 2
    1-комнатная квартира, общая площадь 43м², жилая 12м², кухня 17м²

    Комфортное пространство для жизни и отдыхаКухня-столовая 17,1 кв.м это идеальное место для приготовления вкусной еды и уютных посиделок за столом в кругу семьи и друзейПросторная прихожая 4,6 кв.м с гардеробной 3 кв.м, где удобно организовать хранение...
    • 43 м²
    • 1-ком
    • 12/23 эт.
    • монолит
    9 069 800 Р
    Агент
    +7 (984) Показать номер
    Посмотреть контакты
    1-к кв. Приморский край, Владивосток ул. 3-я Поселковая, 16/1 (43.0 м) - Фото 1
    1-к кв. Приморский край, Владивосток ул. 3-я Поселковая, 16/1 (43.0 м) - Фото 2
    1-комнатная квартира, общая площадь 43м², жилая 12м², кухня 17м²

    Комфортное пространство для жизни и отдыхаКухня-столовая 17,1 кв.м это идеальное место для приготовления вкусной еды и уютных посиделок за столом в кругу семьи и друзейПросторная прихожая 4,6 кв.м с гардеробной 3 кв.м, где удобно организовать хранение...
    • 43 м²
    • 1-ком
    • 7/23 эт.
    • монолит
    8 985 000 Р
    Агент
    +7 (984) Показать номер
    Посмотреть контакты

    Не нашли подходящего объявления?

    Оставьте заявку, и наши риэлторы подберут квартиру в новостройке в районе Владивостока

    (0)