10 015 500 Р 123 000 $ или 105 800

Информация о квартире

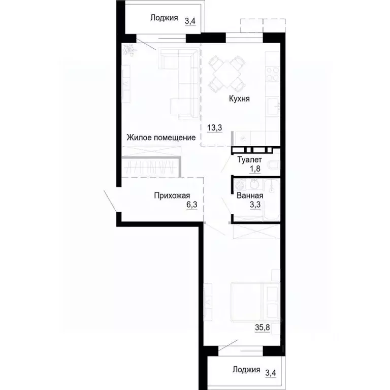
60 м2
Площадь
1
Комната
4
Этаж
4
Этажность

Дополнительная информация

Тип дома
монолит
Развернуть
Агент
Риелтор
+7 (980) 976-12-09
Начать чат с агентом

1-к кв. Приморский край, Владивосток ул. Бринера (60.7 м)

Продаётся 1-комнатная квартира в строящемся доме (Дом 46 Корпус 2), срок сдачи: III-кв. 2025, общей площадью 60.7 кв.м., на 4 этаже. Посёлок-парк ВЕСНА - это малоэтажные жилые дома в районе улицы Бринера в г. Владивостоке. Общая площадь территории - 5 Га, 10 жилых четырехэтажных дома, 365 квартир площадью от 38,7 до 87м2, 381 парковочное место, парк во дворе. Наружные стены домов выполнены из кирпича. На фасаде предусмотрены места для установки наружных блоков кондиционеров. Для удобства жильцов входы в подъезды оборудованы пандусами вместо лестниц. Большие окна - больше света Световые проемы квартир заполнены оконными блоками из ПВХ профиля с двойным стеклопакетом. Высота оконных проёмов 175см. Во всех квартирах есть летние помещения - французские балконы, балконы с остеклением или собственные террасы. Двор ВЕСНЫ оборудован специальными островками для барбекю: обеденная зона отделена навесом от аллей парка, предусмотрены столешницы для готовки со встроенными розетками, под рамной крышей установлен стол. Таким образом, устроить приятные посиделки с близкими и друзьями на свежем воздухе можно во дворе собственного дома. Заниматься спортом на свежем воздухе теперь можно рядом с домом. Для этого в посёлке сооружены универсальная спортивная площадка для тренировок и игр, площадка с уличными тренажерами, а также кольцевая беговая и вело-дорожки. Для каждой квартиры в посёлке в цокольных этажах проектом предусмотрены личные кладовые площадью от 7 до 15м2. В них можно хранить нужные, но редко используемые или габаритные вещи, автомобильные шины, коляски, запчасти или велосипед, или даже обустроить собственную мастерскую.

Читать полностью
    Позвонить Написать
    10 015 500 Р123 000 $ или 105 800
    Агент
    Риелтор
    +7 (980) 976-12-09
    Начать чат с агентом
    Похожие предложения в Владивостоке
    1-к кв. Приморский край, Владивосток ул. Мусоргского, 74к2 (43.08 м) - Фото 1
    1-комнатная квартира, общая площадь 43м²

    Продаётся 1-комнатная квартира в сданном доме (Мусоргского, 74к2 (Дом 2 - Океан)), срок сдачи: IV-кв. 2024, общей площадью 43.08 кв.м., на 21 этаже. Жилой комплекс состоит из трёх домов переменной этажности.
    • 43 м²
    • 1-ком
    • 21/25 эт.
    9 250 000 Р
    Агент
    +7 (924) Показать номер
    Посмотреть контакты
    2-к кв. Приморский край, Владивосток Русская ул., 89 (55.0 м) - Фото 1
    2-к кв. Приморский край, Владивосток Русская ул., 89 (55.0 м) - Фото 2
    2-комнатная квартира, общая площадь 55м²

    Продаётся 2-комнатная квартира в сданном доме (Дом 89), срок сдачи: IV-кв. 2020, общей площадью 55 кв.м., на 11 этаже. Жилой комплекс представляет собой три 16-этажных монолитно-кирпичных здания.
    • 55 м²
    • 2-ком
    • 11/17 эт.
    • монолит
    10 055 000 Р
    Агент
    +7 (800) Показать номер
    Посмотреть контакты
    2-к кв. Приморский край, Владивосток Русская ул., 89А (55.0 м) - Фото 1
    2-к кв. Приморский край, Владивосток Русская ул., 89А (55.0 м) - Фото 2
    2-комнатная квартира, общая площадь 55м²

    Продаётся 2-комнатная квартира в сданном доме (Дом 89/2), срок сдачи: III-кв. 2021, общей площадью 55 кв.м., на 13 этаже. Жилой комплекс представляет собой три 16-этажных монолитно-кирпичных здания.
    • 55 м²
    • 2-ком
    • 13/17 эт.
    • монолит
    10 055 000 Р
    Агент
    +7 (800) Показать номер
    Посмотреть контакты
    2-к кв. Приморский край, Владивосток Русская ул., 89 (55.0 м) - Фото 1
    2-к кв. Приморский край, Владивосток Русская ул., 89 (55.0 м) - Фото 2
    2-комнатная квартира, общая площадь 55м²

    Продаётся 2-комнатная квартира в сданном доме (Дом 89), срок сдачи: IV-кв. 2020, общей площадью 55 кв.м., на 10 этаже. Жилой комплекс представляет собой три 16-этажных монолитно-кирпичных здания.
    • 55 м²
    • 2-ком
    • 10/17 эт.
    • монолит
    10 055 000 Р
    Агент
    +7 (800) Показать номер
    Посмотреть контакты
    2-к кв. Приморский край, Владивосток Русская ул., 89А (55.0 м) - Фото 1
    2-к кв. Приморский край, Владивосток Русская ул., 89А (55.0 м) - Фото 2
    2-комнатная квартира, общая площадь 55м²

    Продаётся 2-комнатная квартира в сданном доме (Дом 89/2), срок сдачи: III-кв. 2021, общей площадью 55 кв.м., на 1 этаже. Жилой комплекс представляет собой три 16-этажных монолитно-кирпичных здания.
    • 55 м²
    • 2-ком
    • 1/17 эт.
    • монолит
    10 055 000 Р
    Агент
    +7 (800) Показать номер
    Посмотреть контакты

    Не нашли подходящего объявления?

    Оставьте заявку, и наши риэлторы подберут квартиру в новостройке в районе Владивостока

    (0)