 
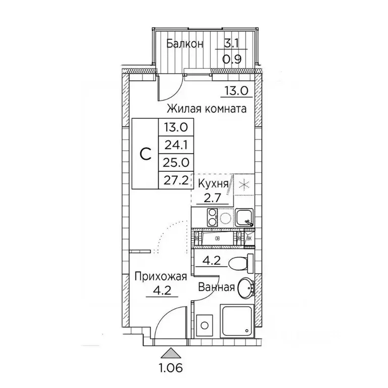
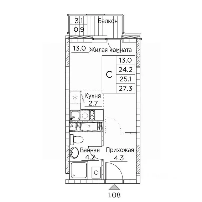
										Строим кварталы для жизни с заботой о будущем. Предлагается квартира студия комфорт-класса 21,5 кв.м в корпусе 1.2 на 2 этаже, в ЖК Сабанеева 125 Квартира без отделки. Доступность опции отделка и возможность комплектации мебелью и декором уточняйте у застройщика.Приобрести квартиру возможно по специальным акциям от застройщика, с текущими условиями акций можно ознакомиться в блоке Акций .Цена динамическая и может отличаться, уточняйте актуальность у застройщика. В жилом комплексе Сабанеева 125 вы ежедневно будете наслаждаться видами сопок. Холмистый рельеф защищает территорию от ветра. Комплекс расположен в Первореченском районе Владивостока, всего в 20 минутах на машине до центра города. На первых этажах откроются супермаркеты, кафе и пекарни. Для малышей — детский сад в 2 минутах пешком и школа в 10 минутах.За 6 минут можно доехать до Нагорного парка, а за 15 минут — до набережной Цесаревича с панорамой Золотого моста. Комплекс состоит из 3 монолитных домов высотой 25 этажей с фасадами, дизайн которых вдохновлен птицами Дальнего Востока. Дворы оформлены как сад с дальневосточной флорой, есть смотровые площадки, скалодром, перголы и игровые зоны для детей. Подземный паркинг — трехуровневый. В сквозные подъезды без ступеней и с помещением для колясок удобно заходить.В жилом комплексе Сабанеева 125 есть квартиры с индивидуальными зелеными террасами, увеличенными окнами и панорамными балконами для чаепитий с видом на сопки и залив.
 
								 
											
                                                                         
											
                                                                         
											
                                                                         
											
                                                                         
											
                                                                        Оставьте заявку, и наши риэлторы подберут квартиру в новостройке в районе Владивостока
