5 922 000 Р 72 910 $ или 63 110

Информация о квартире

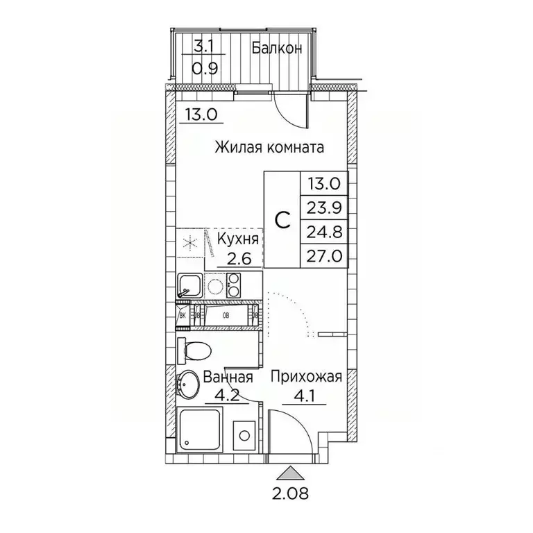
29 м2
Площадь
студия
Комнат
12
Этаж
20
Этажность

Дополнительная информация

Тип дома
монолит
Развернуть
Агент
+7 (984) 729-64-25
Начать чат с агентом

Студия Приморский край, Владивосток Каскада жилой комплекс (29.53 м)

ЖК Каскада . Новый уровень жизни.Это пространство, где каждый день наполнен светом, воздухом и ощущением свободы. Здесь вы живёте в гармонии: с современным городом, природой вокруг и самим собой.Почему Каскада — ваш новый уровень жизни:•Современные корпуса с панорамными окнами и потолками до 2,7 м — ощущение простора и легкости в каждом дне.•Разнообразие квартир — от уютных студий до просторных семейных решений — каждый найдёт свой формат жизни.•Трёхуровневый паркинг и кладовые — порядок и удобство без лишних хлопот.•Зелёный двор (38 территории) с зонами отдыха, спортом и Wi-Fi — место, где приятно проводить время всей семьёй.•Своя инфраструктура в доме: кофейня, детский центр, ресепшн и сервисы — всё рядом, чтобы упростить ваш день.Локация: лесопарк для прогулок и свежего воздуха, пляжи всего в 20 минутах и при этом вся городская инфраструктура под рукой.СТАРТ ПРОДАЖ — новые возможности для вас:•Рассрочка на период строительства•Первоначальный взнос от 10 •Льготная ипотека от партнёров Каскада — дом, который поднимает вашу жизнь на новый уровень.

Читать полностью
    Позвонить Написать
    5 922 000 Р72 910 $ или 63 110
    Агент
    +7 (984) 729-64-25
    Начать чат с агентом
    Похожие предложения в Владивостоке
    Студия Приморский край, Владивосток Сердце квартала жилой комплекс ... - Фото 1
    Студия Приморский край, Владивосток Сердце квартала жилой комплекс ... - Фото 2
    студия, общая площадь 26м²

    Продаётся студия в строящемся доме (Дом 1), срок сдачи: II-кв. 2027, общей площадью 26.6 кв.м., на 20 этаже. Новый жилой комплекс Сердце квартала от Специализированного застройщика ТИМ-ГРУППасположен по адресу: г. Владивосток, по ул. Нейбута.
    • 26 м²
    • студия-ком
    • 20/20 эт.
    • монолит
    5 806 051 Р
    Агент
    +7 (932) Показать номер
    Посмотреть контакты
    1-к кв. Приморский край, Владивосток ул. Расула Гамзатова, 7к1 (26.0 ... - Фото 1
    1-к кв. Приморский край, Владивосток ул. Расула Гамзатова, 7к1 (26.0 ... - Фото 2
    1-комнатная квартира, общая площадь 26м², жилая 12м², кухня 2м²

    ЖК Гринхилс жилой квартал комфорт-класса в выгодной локации микрорайона Зеленый угол, развивающегося современного жилого кластера во Владивостоке, внутри которого реализуются проекты нового поколения, преобразуя город.Полный набор необходимой инфраструктуры,...
    • 26 м²
    • 1-ком
    • 9/19 эт.
    5 878 690 Р
    Агент
    +7 (984) Показать номер
    Посмотреть контакты
    1-к кв. Приморский край, Владивосток ул. Расула Гамзатова, 7к2 (27.0 ... - Фото 1
    1-комнатная квартира, общая площадь 27м², жилая 13м², кухня 2м²

    ЖК Гринхилс жилой квартал комфорт-класса в выгодной локации микрорайона Зеленый угол, развивающегося современного жилого кластера во Владивостоке, внутри которого реализуются проекты нового поколения, преобразуя город.Полный набор необходимой инфраструктуры,...
    • 27 м²
    • 1-ком
    • 19/21 эт.
    5 925 738 Р
    Агент
    +7 (984) Показать номер
    Посмотреть контакты
    1-к кв. Приморский край, Владивосток ул. Расула Гамзатова, 7к3 (26.2 ... - Фото 1
    1-комнатная квартира, общая площадь 26м², жилая 11м², кухня 2м²

    ЖК Гринхилс жилой квартал комфорт-класса в выгодной локации микрорайона Зеленый угол, развивающегося современного жилого кластера во Владивостоке, внутри которого реализуются проекты нового поколения, преобразуя город.Полный набор необходимой инфраструктуры,...
    • 26 м²
    • 1-ком
    • 9/22 эт.
    5 969 781 Р
    Агент
    +7 (984) Показать номер
    Посмотреть контакты
    1-к кв. Приморский край, Владивосток ул. Расула Гамзатова, 7к1 (26.0 ... - Фото 1
    1-к кв. Приморский край, Владивосток ул. Расула Гамзатова, 7к1 (26.0 ... - Фото 2
    1-комнатная квартира, общая площадь 26м², жилая 12м², кухня 2м²

    ЖК Гринхилс жилой квартал комфорт-класса в выгодной локации микрорайона Зеленый угол, развивающегося современного жилого кластера во Владивостоке, внутри которого реализуются проекты нового поколения, преобразуя город.Полный набор необходимой инфраструктуры,...
    • 26 м²
    • 1-ком
    • 8/19 эт.
    5 866 484 Р
    Агент
    +7 (984) Показать номер
    Посмотреть контакты

    Не нашли подходящего объявления?

    Оставьте заявку, и наши риэлторы подберут квартиру в новостройке в районе Владивостока

    (0)