Реализация объекта недвижимости приостановлена

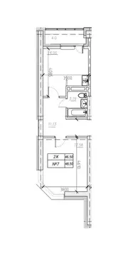
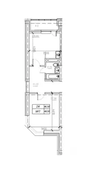
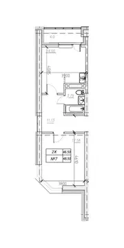
Информация о квартире

42.0 м2
Площадь
26.0 м2
Жилая
4.0 м2
Кухня
2
Комнаты
14
Этаж
20
Этажность
Развернуть

2-к кв. Приморский край, Владивосток ул. Расула Гамзатова, 7к2 (42.6 ...

Жилой комплекс Гринхилсасположен во Владивостоке в микрорайоне Зелёный угол. Комплекс состоит из трёх двухсекционных домов комфорт-класса разной этажности. На территории будет расположен каскадный двор-парк с зонами для отдыха, прогулок и различными площадками для детей и взрослых. Предусмотрен гостевой и отдельный индивидуальный паркинг для жителей.Во дворе не будет машин, безбарьерные входы в подъезды доступны с обеих сторон. Колясочные и современные инженерные системы сделают жизнь в комплексе максимально удобной и комфортной. Благодаря продуманному освещению, жителям будет приятно гулять и отдыхать во дворе в вечернее и ночное время.

Читать полностью

    Реализация объекта недвижимости приостановлена

    Не нашли подходящего объявления?

    Оставьте заявку, и наши риэлторы подберут квартиру в новостройке в районе Владивостока

    (0)