Россия, Приморский край, Владивосток, улица Адмирала Горшкова, 5

Реализация объекта недвижимости приостановлена

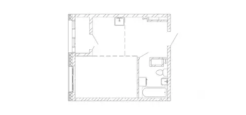
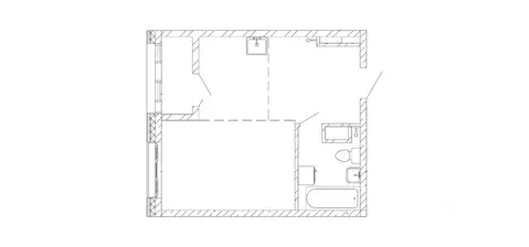
Информация о квартире

41.0 м2
Площадь
15.0 м2
Жилая
12.0 м2
Кухня
1
Комната
8
Этаж
30
Этажность
Развернуть

1-к кв. Приморский край, Владивосток Снеговая Падь мкр, ул. Адмирала ...

Прямая продажа от застройщика Жилой Комплекс комфорт-класса. Продаётся 1-к квартира номер 82 общей площадью 41.6 кв.м. на 8-м этаже 30 этажного здания. Отделка Whitebox. Цена с учётом скидки. Особенности квартиры: - Линейная планировка - максимальная функциональность и удобство. - Гардеробная - удобство для хранения и организации вещей. - Балкон - открытое пространство для отдыха. Квартира с предчистовой отделкой (White box). Вам не придется заниматься черновыми и трудоёмкими работы, а чистовую отделку и дизайн - сделайте на свой вкус. Информация о комплексе: Флагман - современный жилой комплекс для тех, кто ценит комфорт, эстетику и личное пространство. Корпуса, выполненные в едином архитектурном коде, создают выразительный силуэт и формируют гармоничное городское пространство. Современная архитектура от одного из ведущих бюро страны сочетает лаконичность форм и внимание к деталям. Приватные дворы, озеленённые улицы и продуманная инфраструктура делают жизнь здесь по-настоящему комфортной.Благодаря удобному расположению и транспортной доступности, вы легко доберётесь в любую часть города. Транспортная доступность: - 9 мин. пешком до детского сада - 7 мин. до школы - 5 мин. до взрослой поликлиники - 1 мин. до автобусной остановки Внутренняя инфраструктура: Каждая деталь продумана для вашего удобства. Для прогулок и отдыха предусмотрен ландшафтный парк и пешеходный бульвар. Закрытые дворы оснащены детскими и спортивными площадками, а в каждом доме предусмотрены кладовые и колясочные. Комфортные гостевые зоны и зоны ожидания создают атмосферу уюта уже с первых шагов в дом. Все корпуса имеют удобный вход без ступеней и пандусов, обеспечивая лёгкий доступ для жителей любого возраста. Для автомобилистов предусмотрен одноэтажный паркинг с автоматической мойкой, а на первых этажах расположены коммерческие помещения, обеспечивающие повседневные потребности жителей.

Читать полностью

    Реализация объекта недвижимости приостановлена

    Не нашли подходящего объявления?

    Оставьте заявку, и наши риэлторы подберут квартиру в новостройке в районе Владивостока

    (0)