8 977 500 Р 110 500 $ или 95 670

Информация о квартире

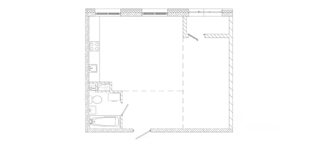
51 м2
Площадь
20 м2
Жилая
16 м2
Кухня
2
Комнаты
19
Этаж
25
Этажность

Дополнительная информация

Тип дома
монолит
Развернуть
Агент
+7 (984) 729-51-82
Начать чат с агентом

2-к кв. Приморский край, Владивосток Снежный парк жилой комплекс (51.3 ...

Продаётся 2-комн. квартира площадью 51,3 кв.м на 19 этаже 25 этажного дома (Корпус 3, Секция 1) проекта ПИК Снежный парк. Светлый просторный подъезд на уровне земли, функциональная планировка, большие окна, предчистовая отделка. Жилой квартал Снежный парк возводится в развитом микрорайоне Владивостока - Снеговой Пади. Рядом уже есть всё для комфортной жизни: 2 школы, детская и взрослая поликлиники, торговый центр и магазины. Проект будет состоять из 7 корпусов, высота которых от 24 до 29 этажей. Благодаря низкой плотности застройки жители будут чувствовать себя комфортно. За счёт переменной этажности в квартиры будет попадать ещё больше естественного света. Из окон последних этажей будет открываться панорамный вид на Амурский залив и лес. В квартирах предусмотрены большие окна, застеклённые балконы и лоджии - будет светло и уютно даже зимой. В жилом квартале появится уникальное общественное пространство с пешеходным бульваром и зонами для отдыха. На первых этажах откроются кафе, магазины и полезные сервисы, куда можно спуститься за горячим кофе или свежеиспечённым хлебом. Из каждого дома будет выход в уютный двор-парк с современными детскими и спортивными площадками. Здесь мы посадим цветы и деревья: будет приятно отдыхать или почитать книгу. Артикул 785836 (Застройщик ООО СЗ ФОРМУЛА-ДВ )

Читать полностью
    Позвонить Написать
    8 977 500 Р110 500 $ или 95 670
    Агент
    +7 (984) 729-51-82
    Начать чат с агентом
    Похожие предложения в Владивостоке
    1-к кв. Приморский край, Владивосток Бам мкр,  (34.0 м) - Фото 1
    1-к кв. Приморский край, Владивосток Бам мкр,  (34.0 м) - Фото 2
    1-комнатная квартира, общая площадь 34м²

    Продаётся 1-комнатная квартира в сданном доме (Дом 3), срок сдачи: IV-кв. 2025, общей площадью 34 кв.м., на 2 этаже. Новый жилой комплекс Футурист от застройщика СИК Девеломпент-югасположен по адресу город Владивосток, улица Карбышева.
    • 34 м²
    • 1-ком
    • 2/24 эт.
    8 917 290 Р
    Агент
    +7 (984) Показать номер
    Посмотреть контакты
    2-к кв. Приморский край, Владивосток Исторический жилой комплекс ... - Фото 1
    2-комнатная квартира, общая площадь 48м²

    Продаётся 2-комнатная квартира в строящемся доме (Дом 2, корпус 6,7), срок сдачи: IV-кв. 2025, общей площадью 48.02 кв.м., на 12 этаже. Новый жилой комплекс Наследие от застройщика Строй Проектасположен по адресу город Владивосток, Снеговая улица.
    • 48 м²
    • 2-ком
    • 12/24 эт.
    9 075 780 Р
    Агент
    +7 (934) Показать номер
    Посмотреть контакты
    2-к кв. Приморский край, Владивосток Снежный парк жилой комплекс, 2 ... - Фото 1
    2-к кв. Приморский край, Владивосток Снежный парк жилой комплекс, 2 ... - Фото 2
    2-комнатная квартира, общая площадь 59м², жилая 20м², кухня 24м²

    Продаётся 2-комн. квартира площадью 59,42 кв.м на 3 этаже 24 этажного дома (Корпус 2, Секция 2) проекта ПИК Снежный парк. Светлый просторный подъезд на уровне земли, функциональная планировка, большие окна, предчистовая отделка. Жилой квартал Снежный...
    • 59 м²
    • 2-ком
    • 3/24 эт.
    • монолит
    8 957 743 Р
    Агент
    +7 (984) Показать номер
    Посмотреть контакты
    2-к кв. Приморский край, Владивосток Флагман жилой комплекс (41.8 м) - Фото 1
    2-к кв. Приморский край, Владивосток Флагман жилой комплекс (41.8 м) - Фото 2
    2-комнатная квартира, общая площадь 41м², жилая 23м², кухня 5м²

    Прямая продажа от застройщика Жилой Комплекс комфорт-класса. Продаётся 2-к квартира номер 383 общей площадью 41.8 кв.м. на 10-м этаже 22 этажного здания. Отделка Whitebox. Цена с учётом скидки. Особенности квартиры: - Линейная планировка - максимальная...
    • 41 м²
    • 2-ком
    • 10/22 эт.
    9 092 504 Р
    Агент
    +7 (984) Показать номер
    Посмотреть контакты
    1-к кв. Приморский край, Владивосток Снежный парк жилой комплекс (48.2 ... - Фото 1
    1-к кв. Приморский край, Владивосток Снежный парк жилой комплекс (48.2 ... - Фото 2
    1-комнатная квартира, общая площадь 48м², жилая 26м², кухня 10м²

    Продаётся 1-комн. квартира площадью 48,2 кв.м на 2 этаже 25 этажного дома (Корпус 4, Секция 2) проекта ПИК Снежный парк. Светлый просторный подъезд на уровне земли, функциональная планировка, большие окна, c отделкой. Жилой квартал Снежный парк возводится...
    • 48 м²
    • 1-ком
    • 2/25 эт.
    • монолит
    9 003 760 Р
    Агент
    +7 (984) Показать номер
    Посмотреть контакты

    Не нашли подходящего объявления?

    Оставьте заявку, и наши риэлторы подберут квартиру в новостройке в районе Владивостока

    (0)