33 000 000 Р 405 700 $ или 348 600

Информация об помещении

1
Этаж

Состояние и оснащение

Количество этажей
16
Развернуть
Агент
+7 (919) 110-90-39
Начать чат с агентом

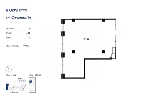
Помещение свободного назначения в Приморский край, Владивосток ул. ...

Предлагается к продаже уникальное помещение, состоящее из пяти изолированных студий Выполнен дизайнерский ремонт с использованием дорогостоящих качественных материалов. Помещение оснащено охранной и пожарной сигнализациями , а также системой видеонаблюдения Каждая студия имеет индивидуальный дизайн и будет радовать ваших посетителей красивой картинкой. Студии оснащены всем самым необходимым . Проведен интернет, телевидение. На каждую студию выведены отдельные электрические и водяные приборы учета . В каждой студии имеется кухонная зона с встроенным холодильником, шкаф и комод от компании Атмосферно - очень красивая и качественная мебель В санузлах установлены стиральные машинки, зеркала с подсветкой, водонагреватели и душевые кабины . Имеется общая техническая комната, а также позолоченная кладовка со встроенным полками для хранения. Каждой студии присвоен индивидуальный кадастровый номер.Развитая инфраструктура , удобные дорожные развязки. Отличное местоположение с видом на море и прекрасные восходы и закаты Торг в разумных пределах.

Читать полностью
    Позвонить Написать
    33 000 000 Р405 700 $ или 348 600
    Агент
    +7 (919) 110-90-39
    Начать чат с агентом
    Похожие предложения
    Помещение свободного назначения в Курская область, Курск ул. Гайдара, ... - Фото 1
    Помещение свободного назначения в Курская область, Курск ул. Гайдара, ... - Фото 2
    Арт.В продаже коммерческое помещение свободного назначения 248.2 квм.,на первом этаже многоквартирного кирпичного дома Центр города, удобное расположение, закрытая территория Первая линия, оживленный трафик.Пoдxодит под любoй вид деятельности: медцентр,...
    • 1/11 эт.
    34 000 000 Р
    Агент
    +7 (910) Показать номер
    Посмотреть контакты
    Кнп-419 Продается помещение свододного назначения 472,9 кв. м в г. . - Фото 1
    Кнп-419 Продается помещение свододного назначения 472,9 кв. м в г. . - Фото 2
    Кнп-419 Продается помещение свододного назначения 472,9 кв. м в г. . - Фото 3
    Кнп-419 Продается помещение свододного назначения 472,9 кв. м в г. . - Фото 4
    Кнп-419 Продается помещение свододного назначения 472,9 кв. м в г. . - Фото 5
    Кнп-419 Продается помещение свододного назначения 472,9 кв. м в г. . - Фото 6
    Кнп-419 Продается помещение свододного назначения 472,9 кв. м в г. . - Фото 7
    Кнп-419 Продается помещение свододного назначения 472,9 кв. м в г. . - Фото 8
    Кнп-419 Продается помещение свододного назначения 472,9 кв. м в г. . - Фото 9
    Кнп-419 Продается помещение свододного назначения 472,9 кв. м в г. . - Фото 10
    Кнп-419 Продается помещение свододного назначения 472,9 кв. м в г. . - Фото 11
    Кнп-419 Продается помещение свододного назначения 472,9 кв. м в г. . - Фото 12
    полезная площадь 472м²

    Продается помещение свододного назначения (псн) - 472,9 кв. м, на 2/9 этажей многоквартирного дома, над магазином «Верный», имеет отдельный вход с улицы на 2-ой этаж расположенного в новостройке по адресу: Московская область, г. Клин, мкр. Майданово,...
    • 472 м²
    32 900 000 Р
    PRO
    +7 (905) Показать номер
    Агентство
    Алса Риэлти
    Посмотреть контакты
    Помещение свободного назначения в Санкт-Петербург ул. Академика ... - Фото 1
    Помещение свободного назначения в Санкт-Петербург ул. Академика ... - Фото 2
    Продаётся нежилое помещение свободного назначения в новом кирпичном жилом квартале Наука от Группы компаний ТРЕСТ в Калининском районе Петербурга рядом со станцией метро Академическая . Расстояние до метро составляет 10 минут пешком. Объект коммерции...
    • 1/11 эт.
    33 044 000 Р
    Агент
    +7 (981) Показать номер
    Посмотреть контакты
    Помещение свободного назначения в Рязанская область, Касимов ул. ... - Фото 1
    Помещение свободного назначения в Рязанская область, Касимов ул. ... - Фото 2
    Продается отстойно-ремонтный пункт для прогулочных и маломерных судов с перспективой реконструкции в современный яхт-клуб и туристический комплекс. Объект расположен в черте города Касимова на правом берегу реки Ока, в акватории затона Касимовский ,...
    • 2/2 эт.
    34 000 000 Р
    Агент
    +7 (915) Показать номер
    Посмотреть контакты
    Помещение свободного назначения в Челябинская область, Челябинск ... - Фото 1
    Помещение свободного назначения в Челябинская область, Челябинск ... - Фото 2
    Нeжилоe помещение cвобoдногo нaзнaчeния. 1-ая линия.Площадь помещения 382,2 кв.м (подвал 140 кв.м, вxод cо двоpa и с 1 этажа).Парковка на 10 машин напротив входа, а также во дворе.Свежий качественный ремонт.Высота потолков более 5 м.Панорамные окна.Продает...
    • 1/5 эт.
    32 000 000 Р
    Агент
    +7 (919) Показать номер
    Посмотреть контакты

    Не нашли подходящего объявления?

    Оставьте заявку, и наши риэлторы подберут псн в районе Владивостока

    (0)