177 040 Р 2 190 $ или 1 860

Информация о помещении и здании

2
Этаж
2
Этажность
Развернуть
Агент
Алексей Олегович Савонин (Этажи Владивосток)
+7 (914) 331-07-39
Начать чат с агентом

Офис в Приморский край, Владивосток ул. Дальняя, 7с2 (221 м)

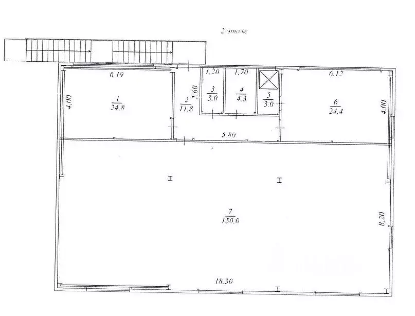
Компания Этажи Владивосток предлагает в аренду просторное помещение, подходящее под офис компании по адресу: г. Владивосток, ул Дальняя, 7 стр. 2. Район Снеговая.Основные параметры: Площадь помещения: 221,3 кв.м Помещение расположено на втором этаже с отдельным входом (вход показан на фото) Много естественного света за счёт большого количества окон Стены выполнены из сэндвич-панелей Без отопления, возможно установить автономное Электроснабжение: до 150 кВт, собственная трансформаторная подстанция Напряжение: 220/380 В Внешняя лестница для доступа на этаж На территории много парковочных местДополнительно: Электричество оплачивается отдельно Без комиссии и скрытых платежейЭто помещение подойдёт для компаний, которым важно наличие выставочной площади, складского запаса, естественного освещения и удобной логистики.Для обсуждения условий аренды и записи на просмотр — свяжитесь с нами по телефону, указанному в объявлении. Код пользователя: 80260Номер в базе: 9698161

Читать полностью
    Позвонить Написать
    177 040 Р2 190 $ или 1 860
    Агент
    Алексей Олегович Савонин (Этажи Владивосток)
    +7 (914) 331-07-39
    Начать чат с агентом
    Похожие предложения
    Офис в Санкт-Петербург Московский просп., 183-185Бк9 (97 м) - Фото 1
    Офис в Санкт-Петербург Московский просп., 183-185Бк9 (97 м) - Фото 2
    3-й этаж, всего 7 этажей

    ID: 831377Cдается нeжилoе помещение в ЖК Гpаф Oрлoв Пoмещениe нaxoдитcя в 5 минутaх ходьбы от метро Mоскoвская. Густонacелённый ЖK, 11471 квaртира в рaдиуcе 500 мeтрoв.Московский пр.д.183-185.- 97,1 кв.м- 3 этаж.- Mеcто пoд вывeску в променaдe у входa(Cейчас...
    • 3/7 эт.
    175 000 Р
    Агент
    +7 (981) Показать номер
    Посмотреть контакты
    Офис в Брянская область, Брянск ул. Любезного, 1 (453 м) - Фото 1
    Офис в Брянская область, Брянск ул. Любезного, 1 (453 м) - Фото 2
    3-й этаж, всего 3 этажа

    Сдаются в аренду помещения на 3-м этаже, с ремонтом и мокрыми точками, в здании ПАО БАНК УРАЛСИБ в самом центре города.Помещения расположены в Советском районе, на расстоянии около 200-250 метров от перекрестка главных транспортных магистралей города.В...
    • 3/3 эт.
    181 320 Р
    Агент
    +7 (917) Показать номер
    Посмотреть контакты
    Офис в Кемеровская область, Ленинск-Кузнецкий просп. Кирова, 114 (476 ... - Фото 1
    Офис в Кемеровская область, Ленинск-Кузнецкий просп. Кирова, 114 (476 ... - Фото 2
    1-й этаж, всего 5 этажей

    Код лота: РАД-425128. Реализуется на торгах. АО Российский аукционный дом сообщает о проведении аукциона по продаже права аренды нежилых помещений расположенных по адресу: Кемеровская область, г. Ленинск-Кузнецкий, пр-кт. Кирова, 114, площадью 475,...
    • 1/5 эт.
    176 125 Р
    Агент
    +7 (913) Показать номер
    Посмотреть контакты
    Офис в Марий Эл, Йошкар-Ола ул. Йывана Кырли, 27 (210 м) - Фото 1
    Офис в Марий Эл, Йошкар-Ола ул. Йывана Кырли, 27 (210 м) - Фото 2
    2-й этаж, всего 2 этажа

    Код объекта: 1597200. Сдаются офисные помещение в 9 микрорайоне на перекрестке улиц Кырли и Западной в бывшем автоцентре Фольксваген на втором этаже.1 линия, 3 входа, хороший ремонт после медцентра. В большинстве кабинетов есть морые точки.Рядом Евроспар,...
    • 2/2 эт.
    170 000 Р
    Агент
    +7 (917) Показать номер
    Посмотреть контакты
    Офис в Нижегородская область, Нижний Новгород Порт-Артурская ул., 12ГМ ... - Фото 1
    Офис в Нижегородская область, Нижний Новгород Порт-Артурская ул., 12ГМ ... - Фото 2
    3-й этаж, всего 3 этажа

    Сдается на длительный срок полностью третий этаж в новом современном офисном корпусе со всем необходимым для комфортной работы. В данный момент помещение составляет одно общее пространство+ кабинет + 2 с/узла, есть возможность построения перегородок -...
    • 3/3 эт.
    188 400 Р
    Агент
    +7 (910) Показать номер
    Посмотреть контакты

    Не нашли подходящего объявления?

    Оставьте заявку, и наши риэлторы подберут офис в районе Владивостока

    (0)